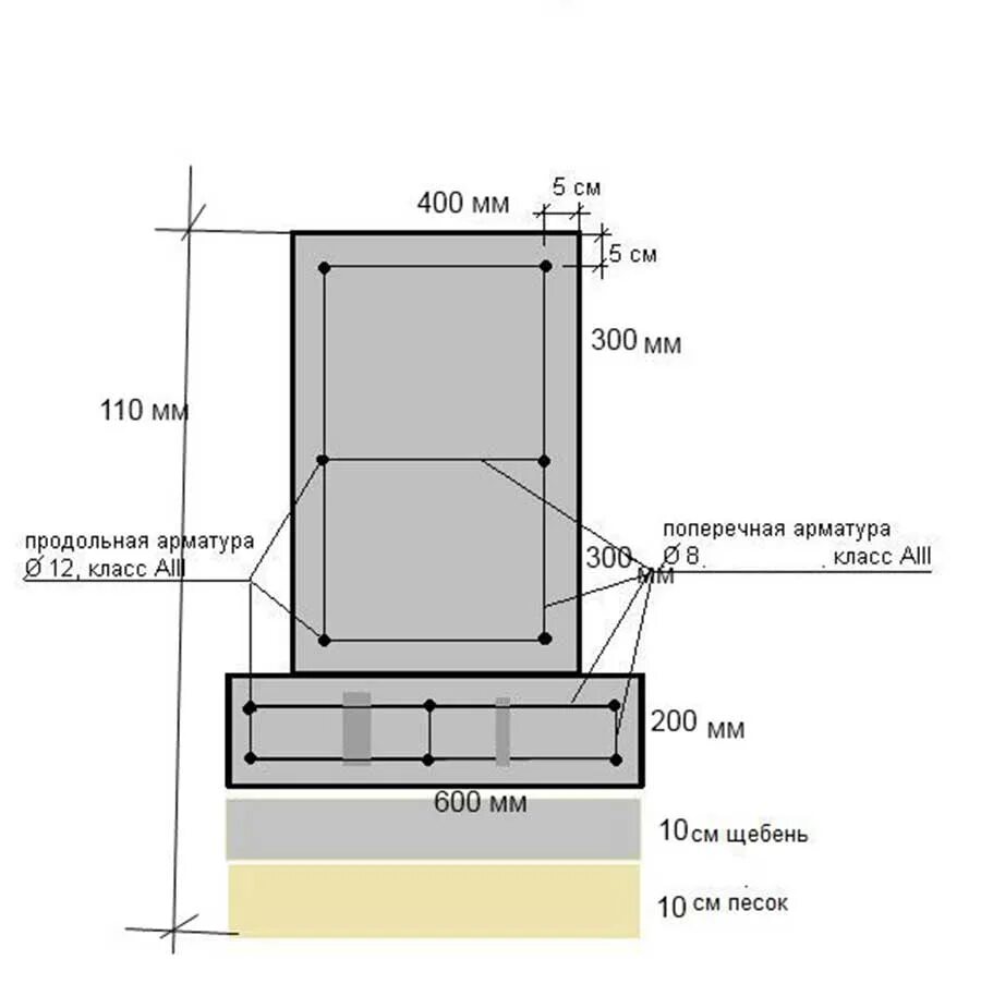
Подошва ленточного