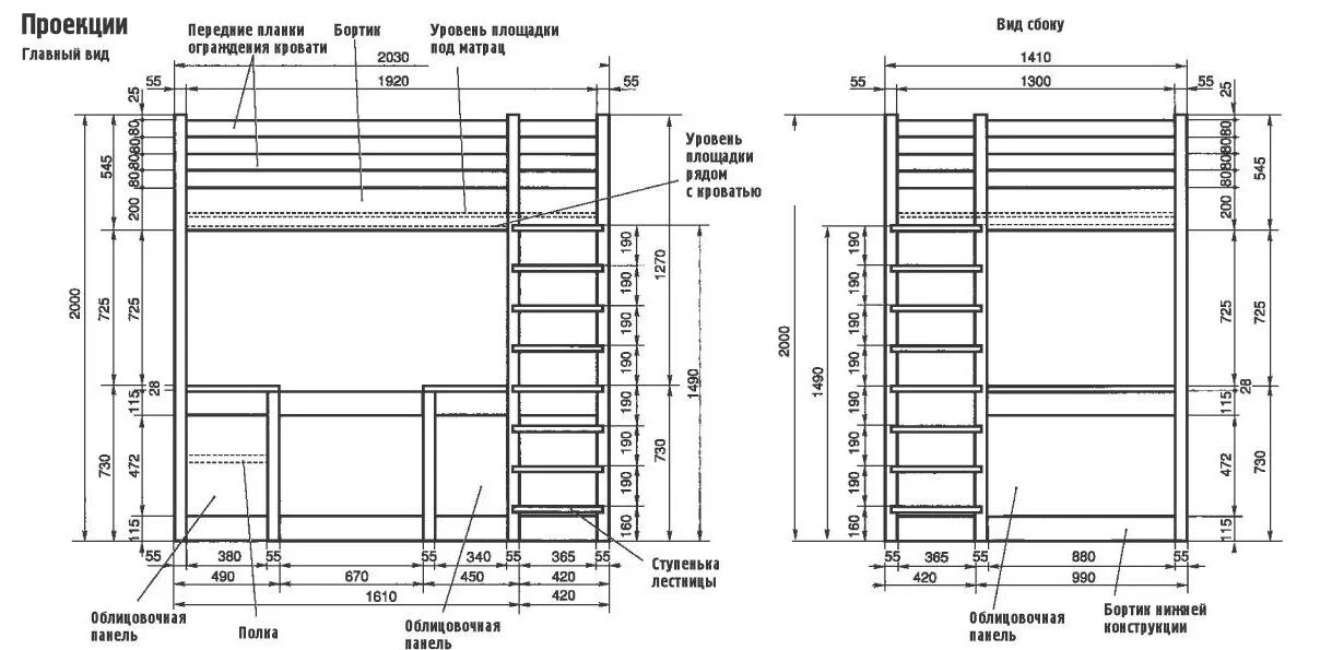
Подробные размеры