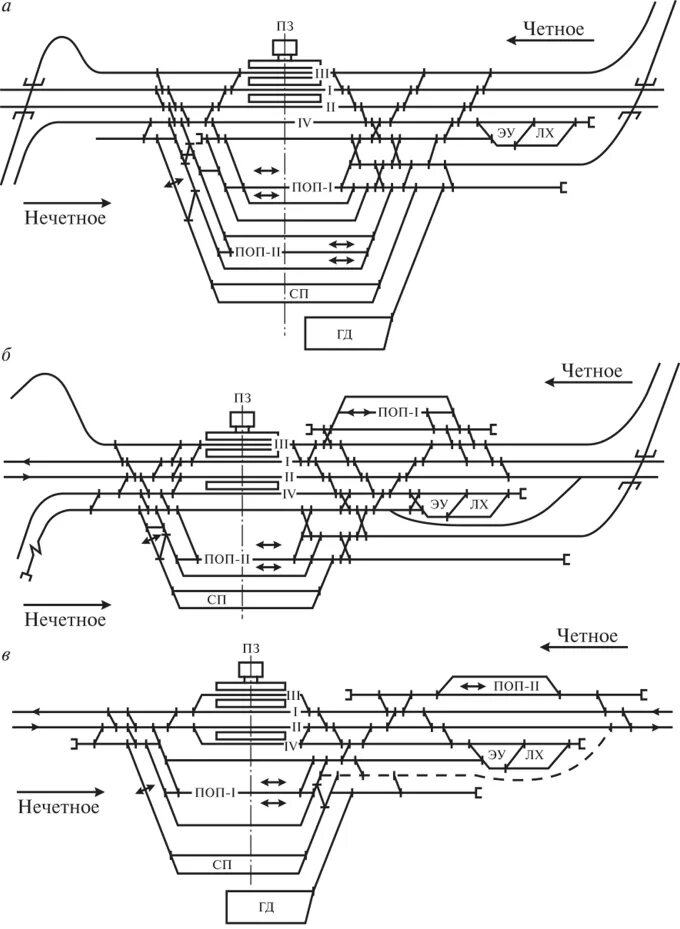
Поперечный тип станции