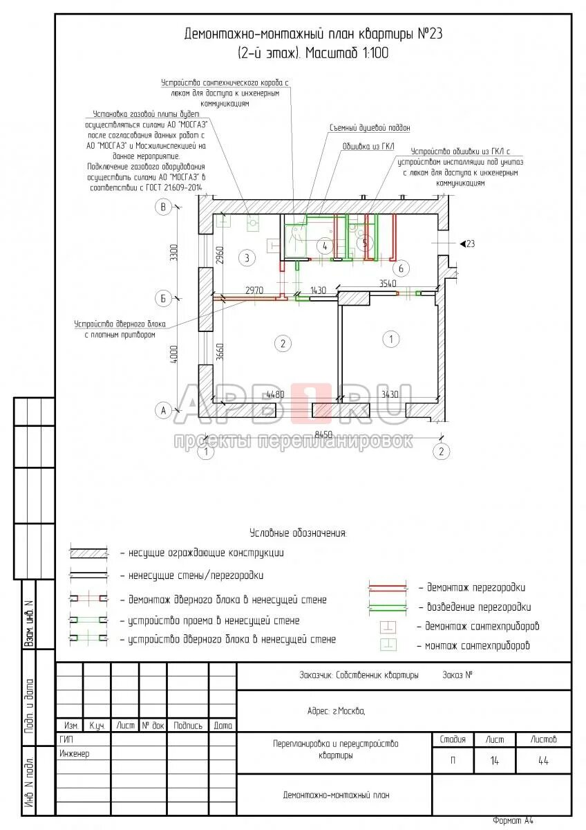
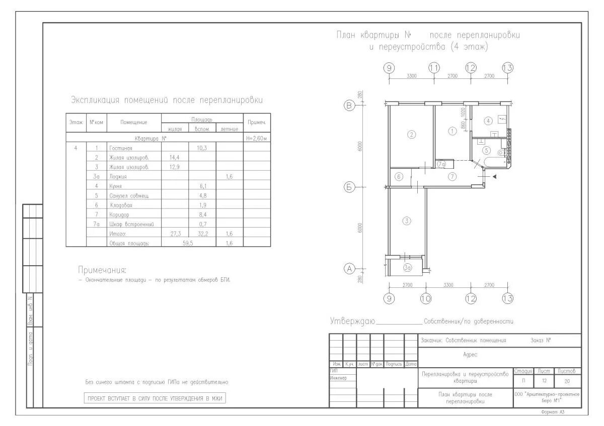
Постановление перепланировка