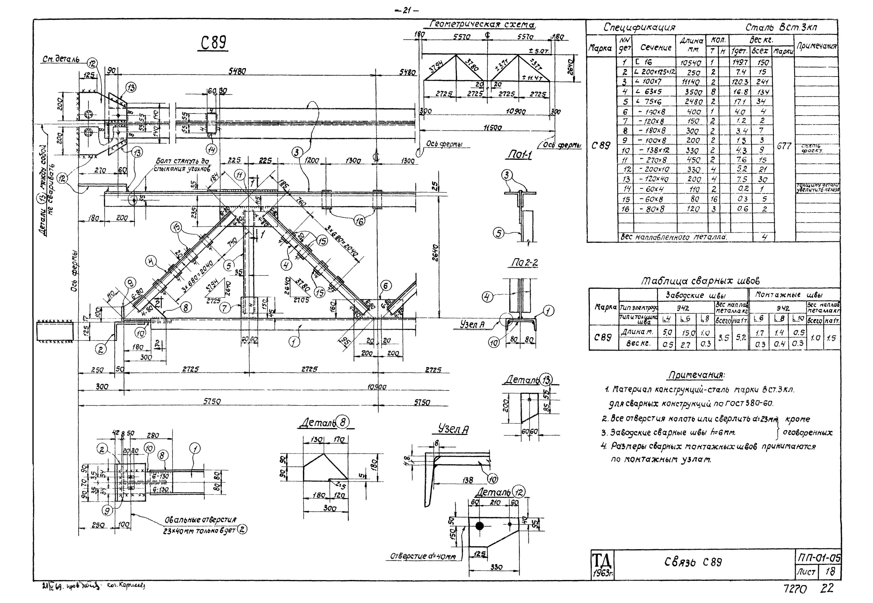
Пп 01