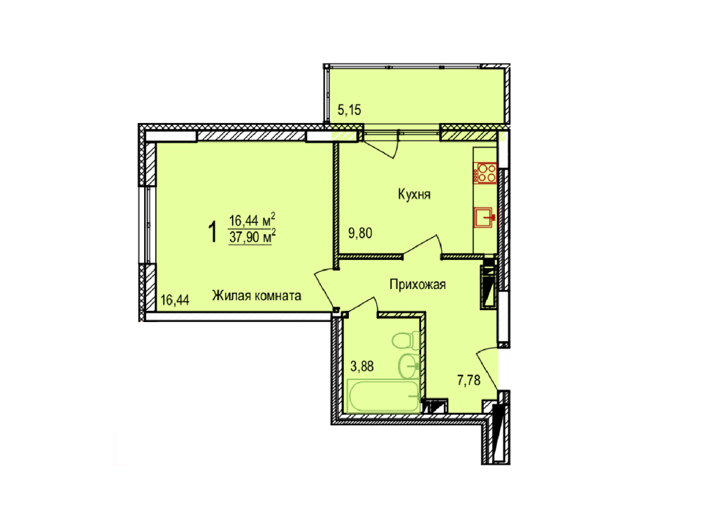
Пригородная дом 4