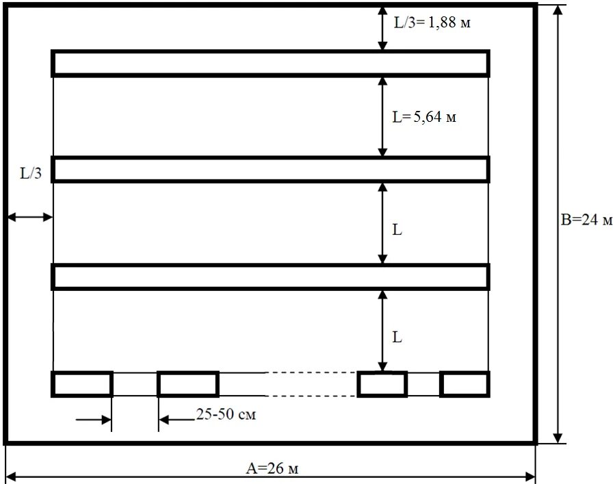
Приложение 1 к расчету