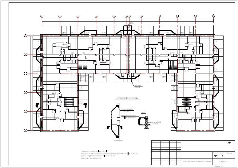
Пример проекта многоквартирного дома