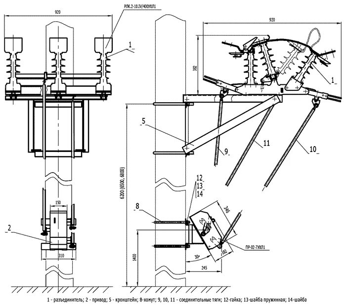
Привод разъединителя рлк