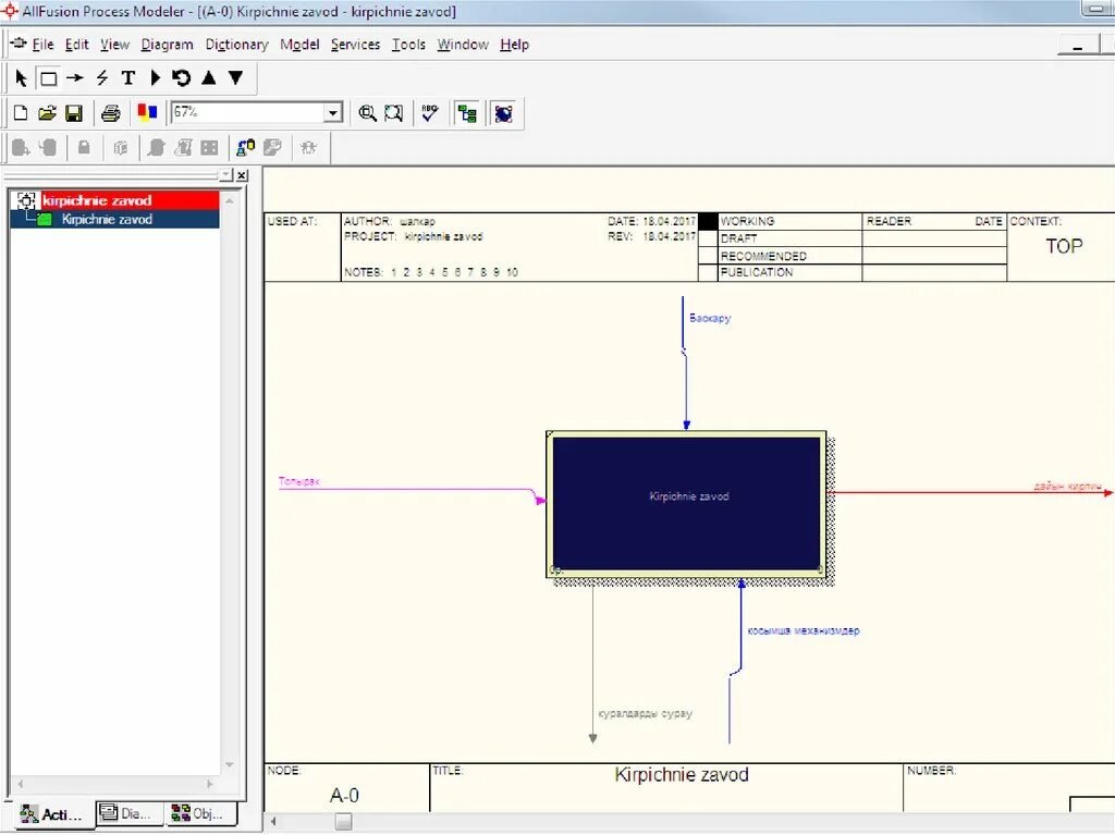
Process modeler