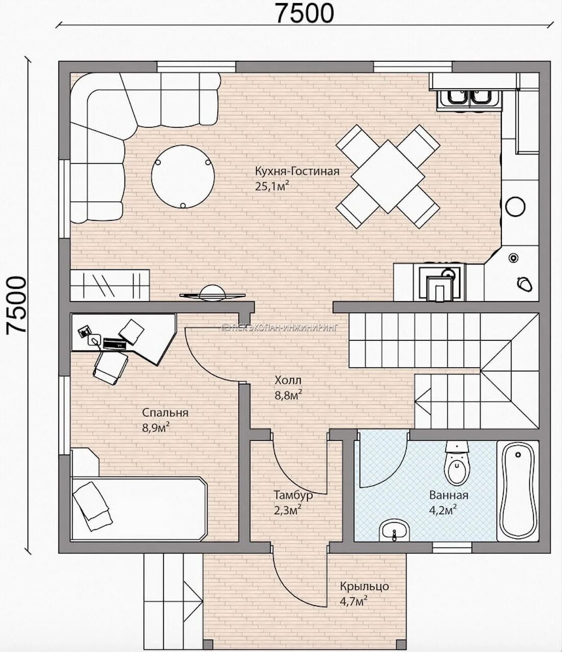
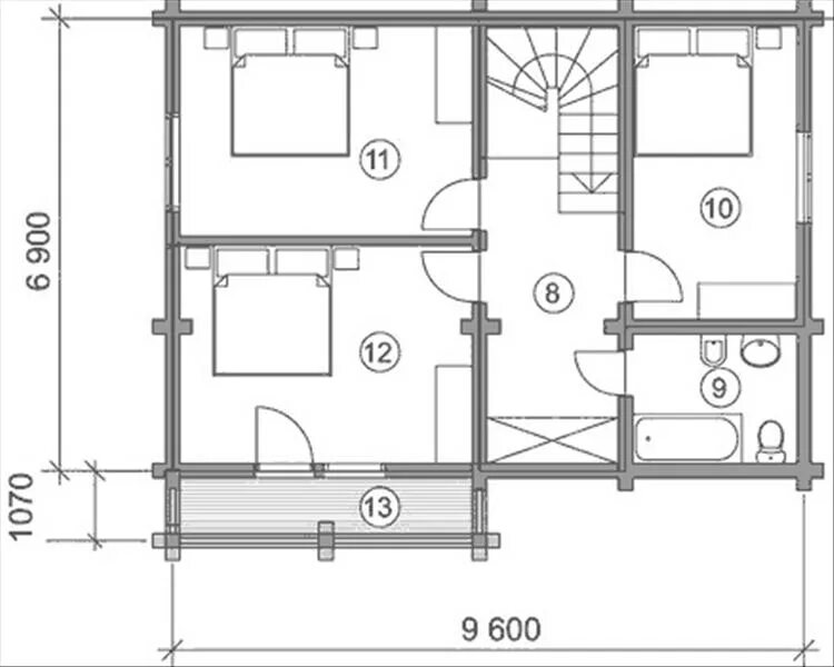
Проект дома 7 комнат