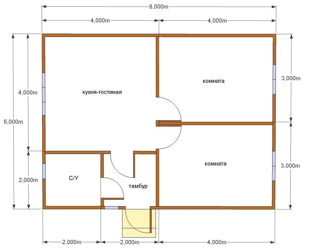
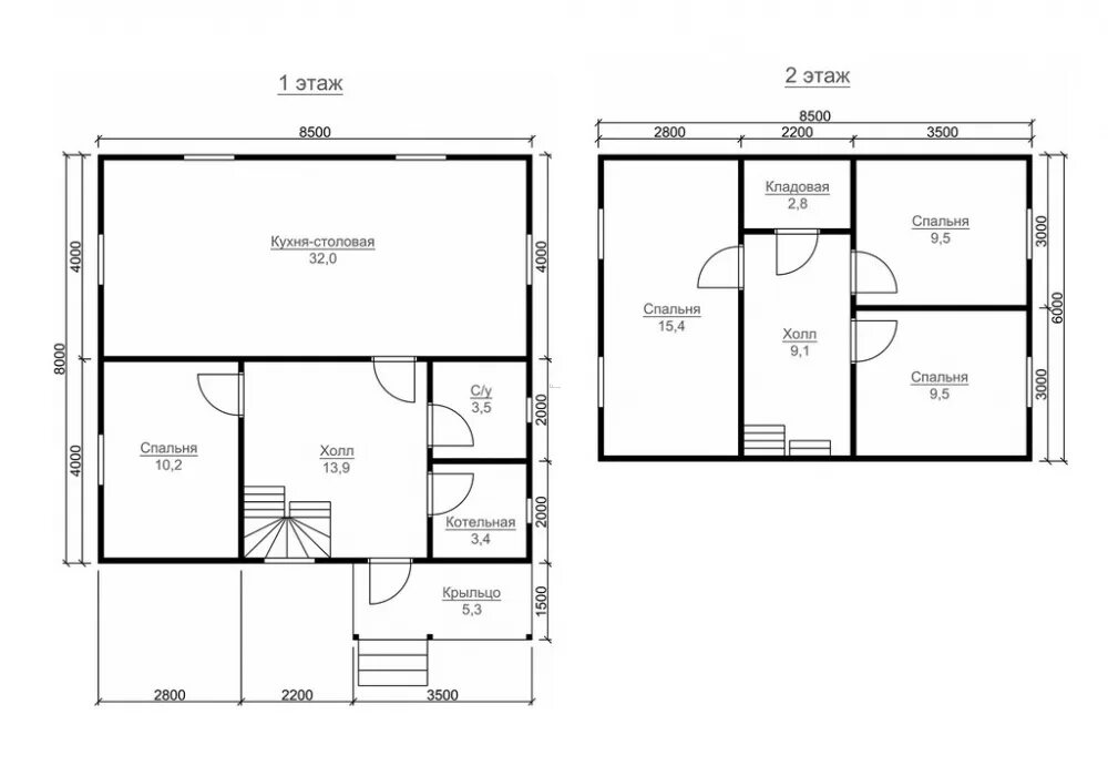
Проект дома 8 на 8 метров