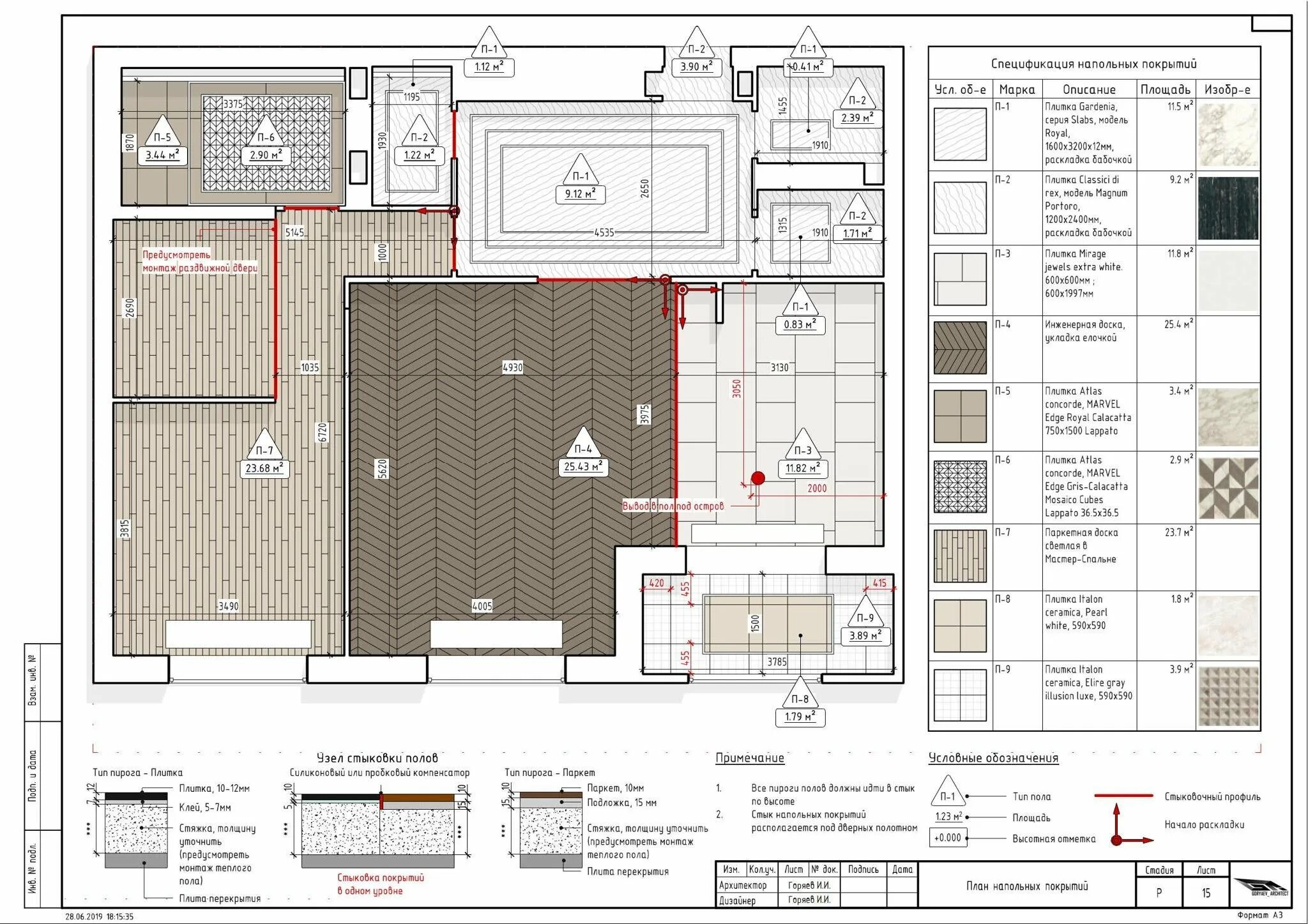
Проект полов