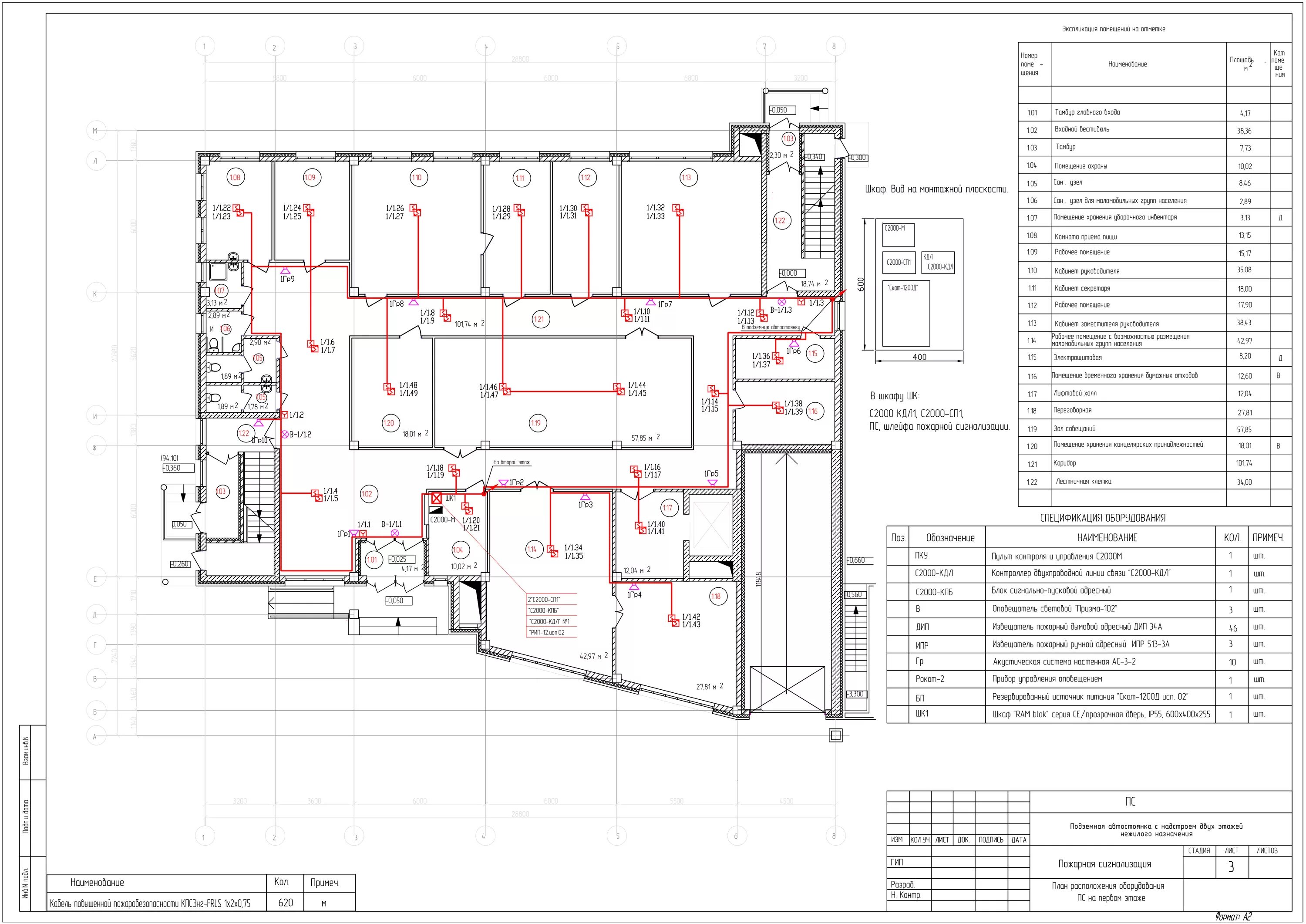
Проектирование установок пожарной сигнализации