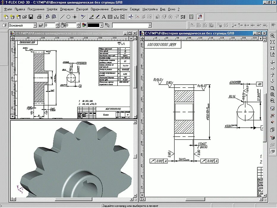
Проектирование зубчатых колес