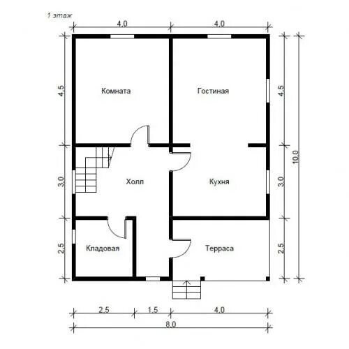
Проекты каркасных дома 8 10