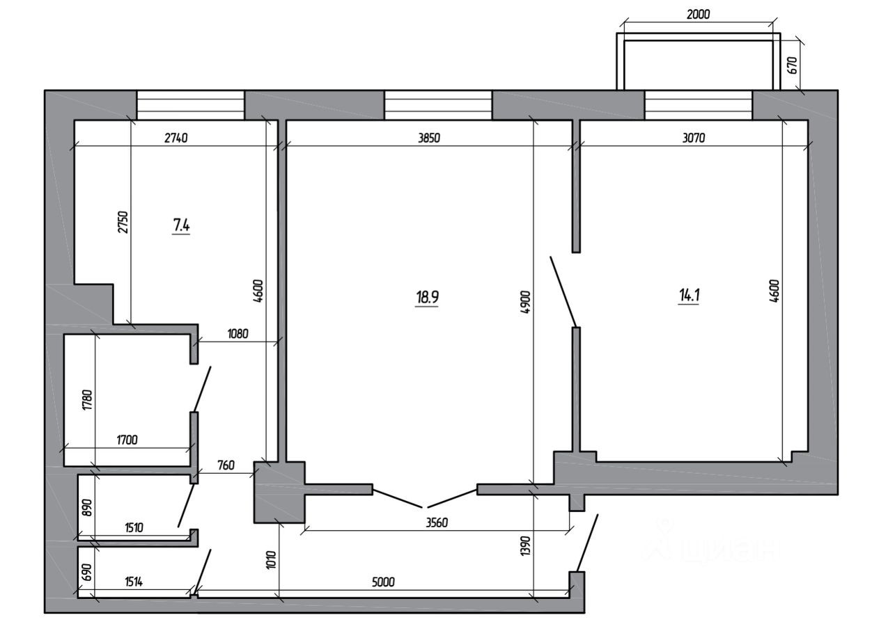
Проезд курбатова