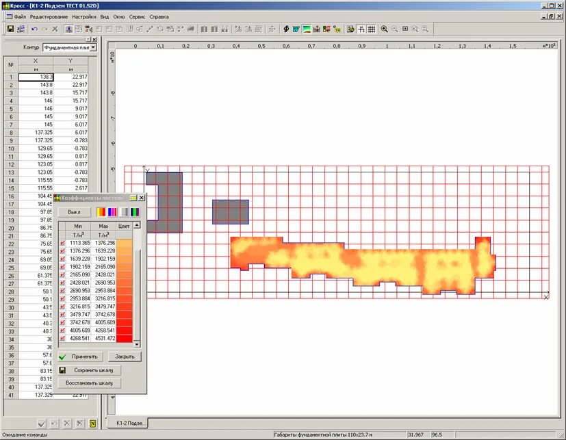
Программа cross