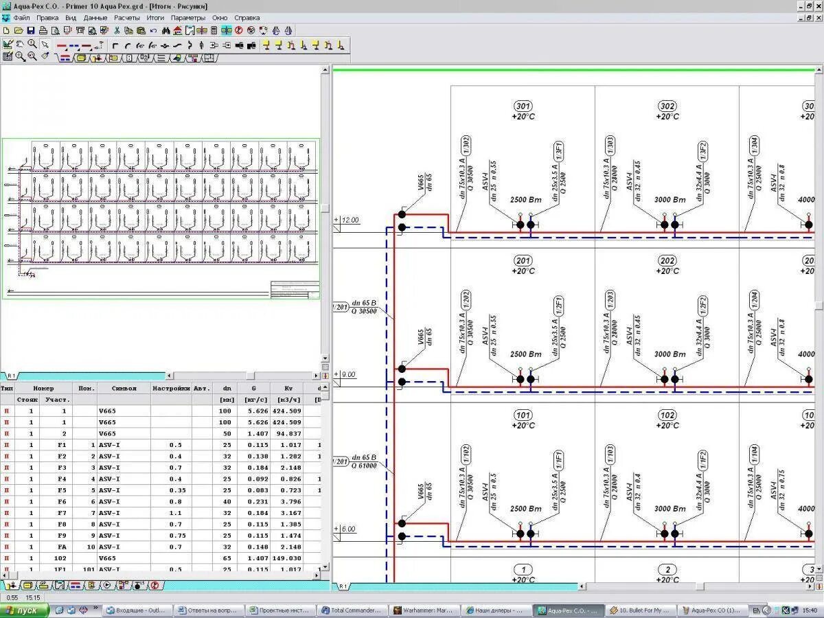
Программа расчета системы