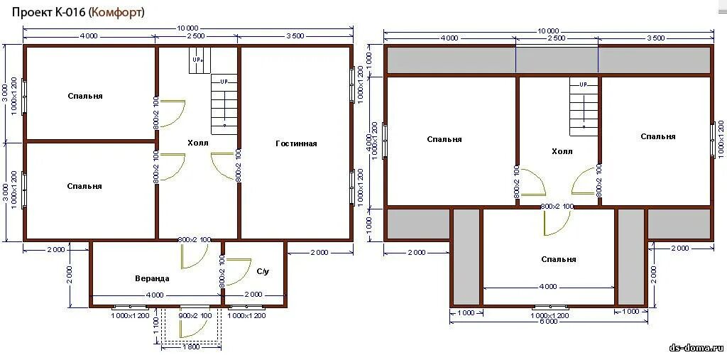
Project 16 15