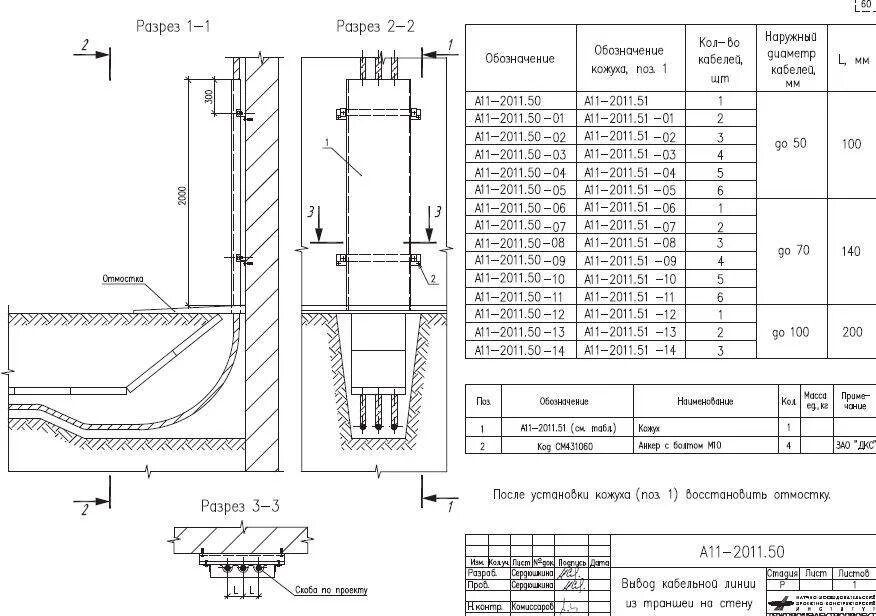
Прокладка кабеля в земле пуэ