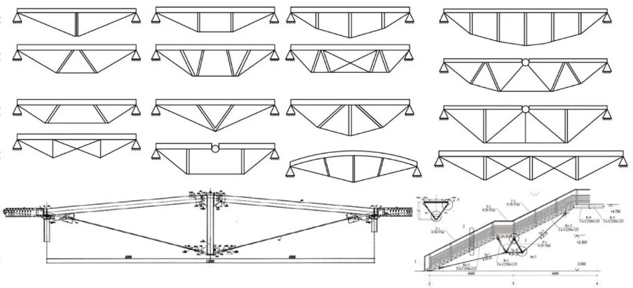
Пролет 10 м