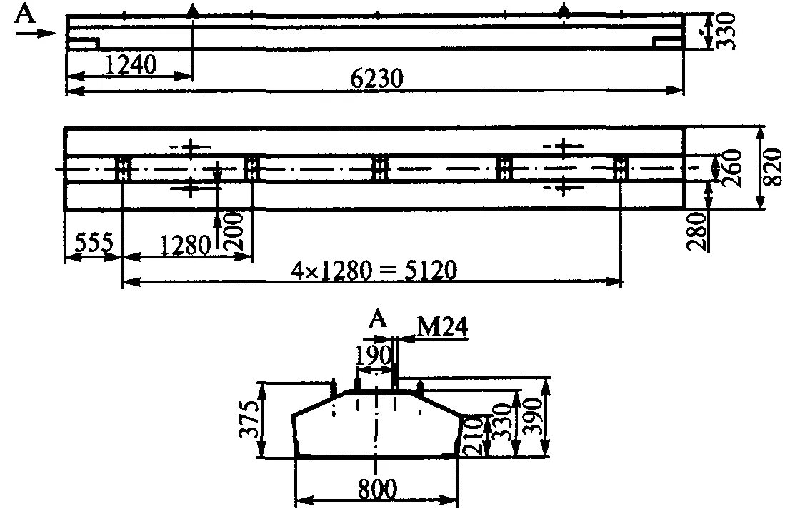
Пролет рельсового пути