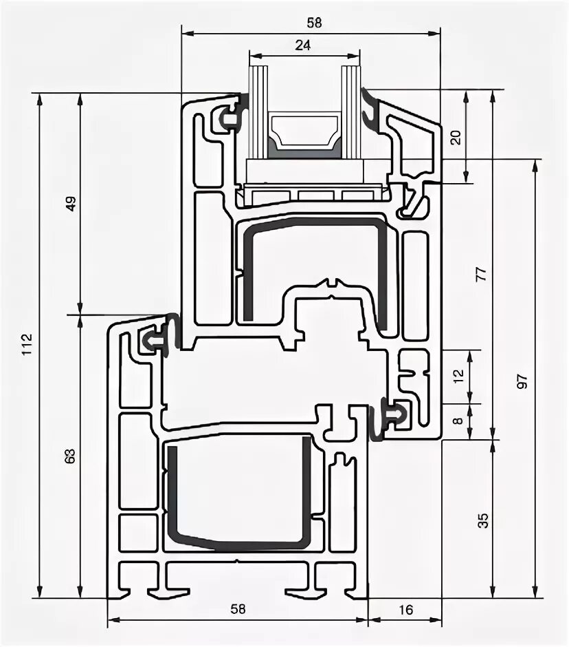
Proplex basis