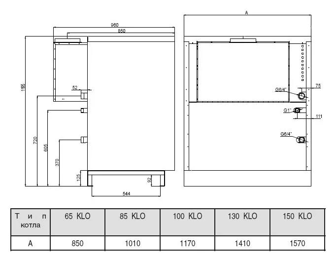
Протерм гризли 100