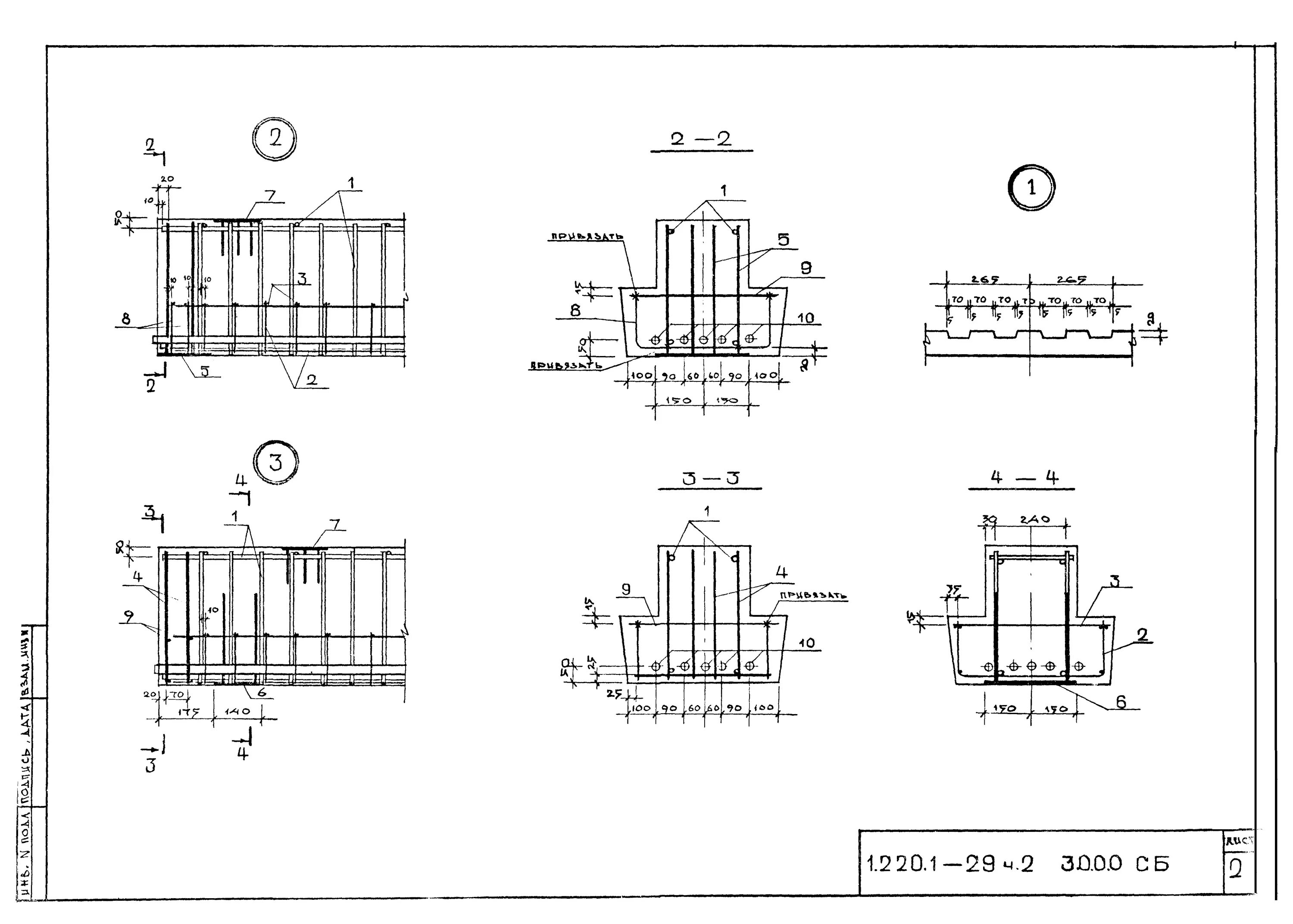
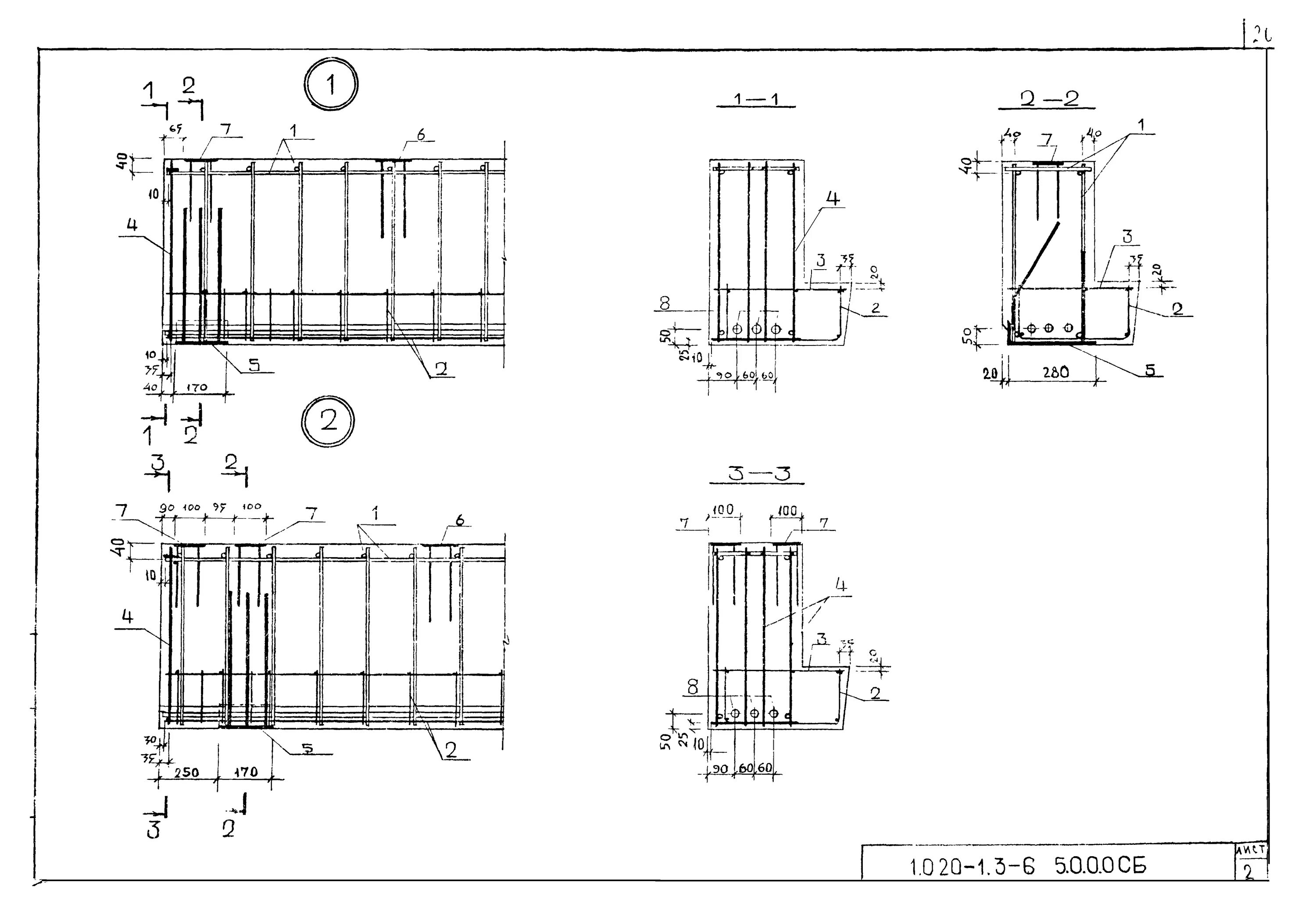
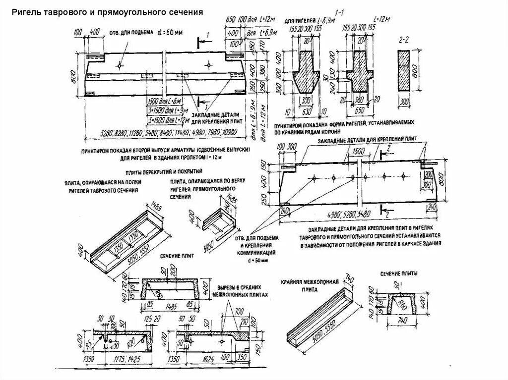
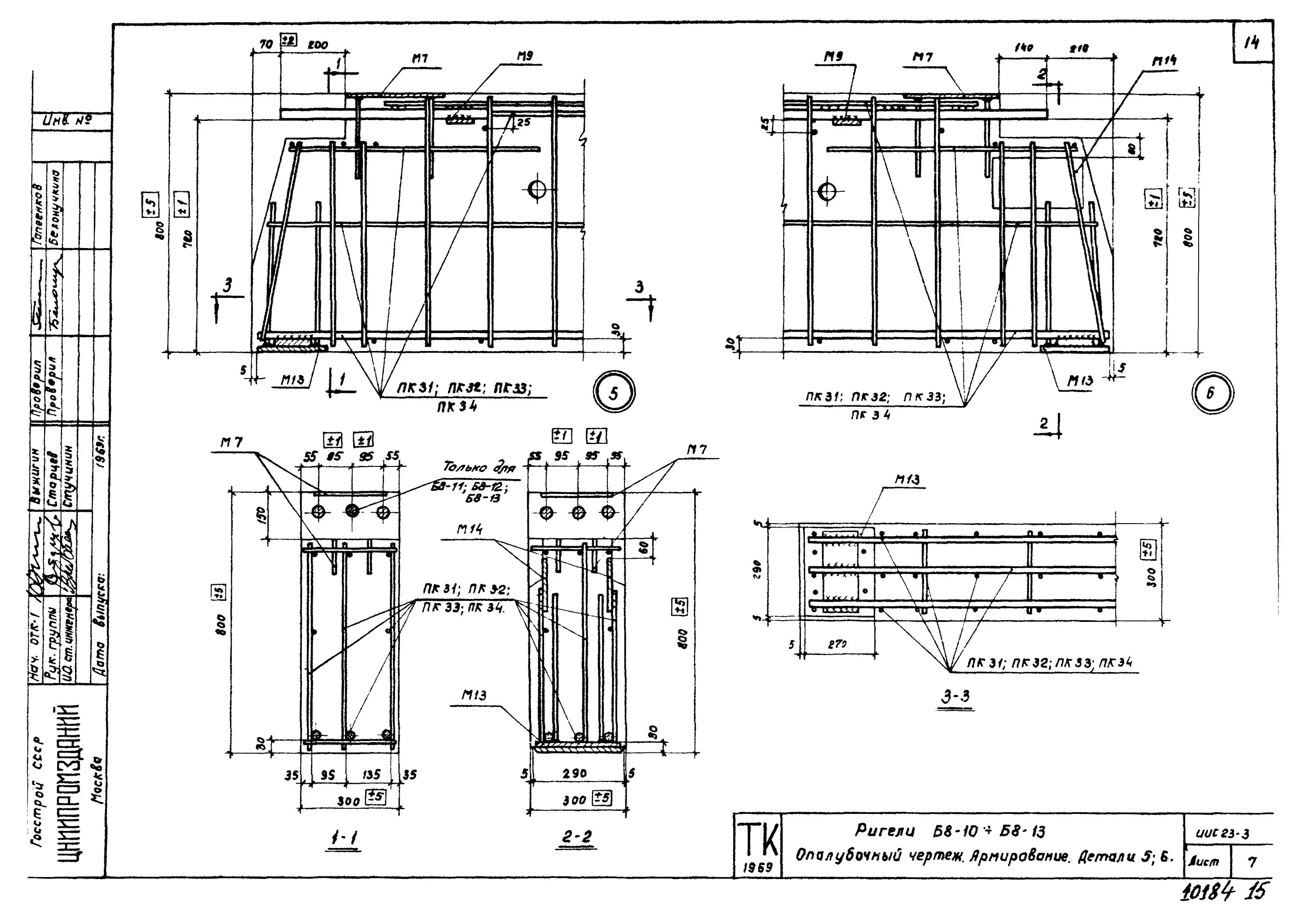
Прямоугольное сечение ригеля