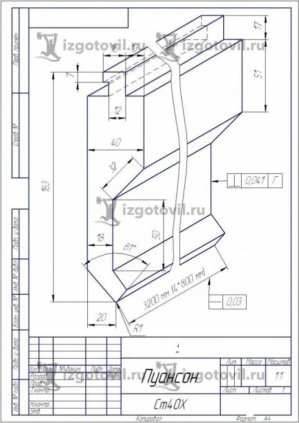
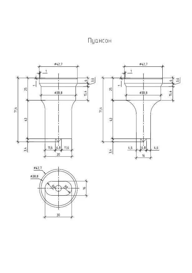
Пуансон размеры