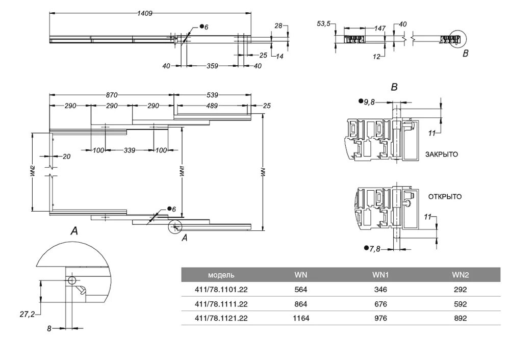
Pull out 1