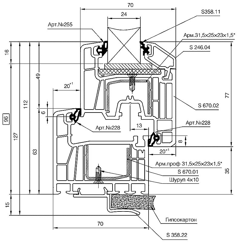
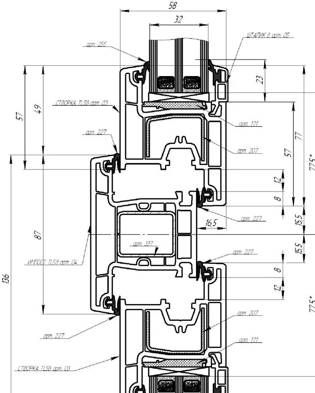
Пвх профиль размер