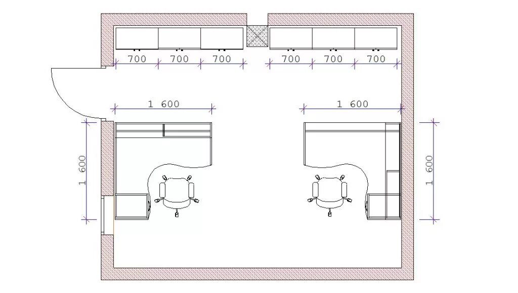
Рабочее пространство размеры