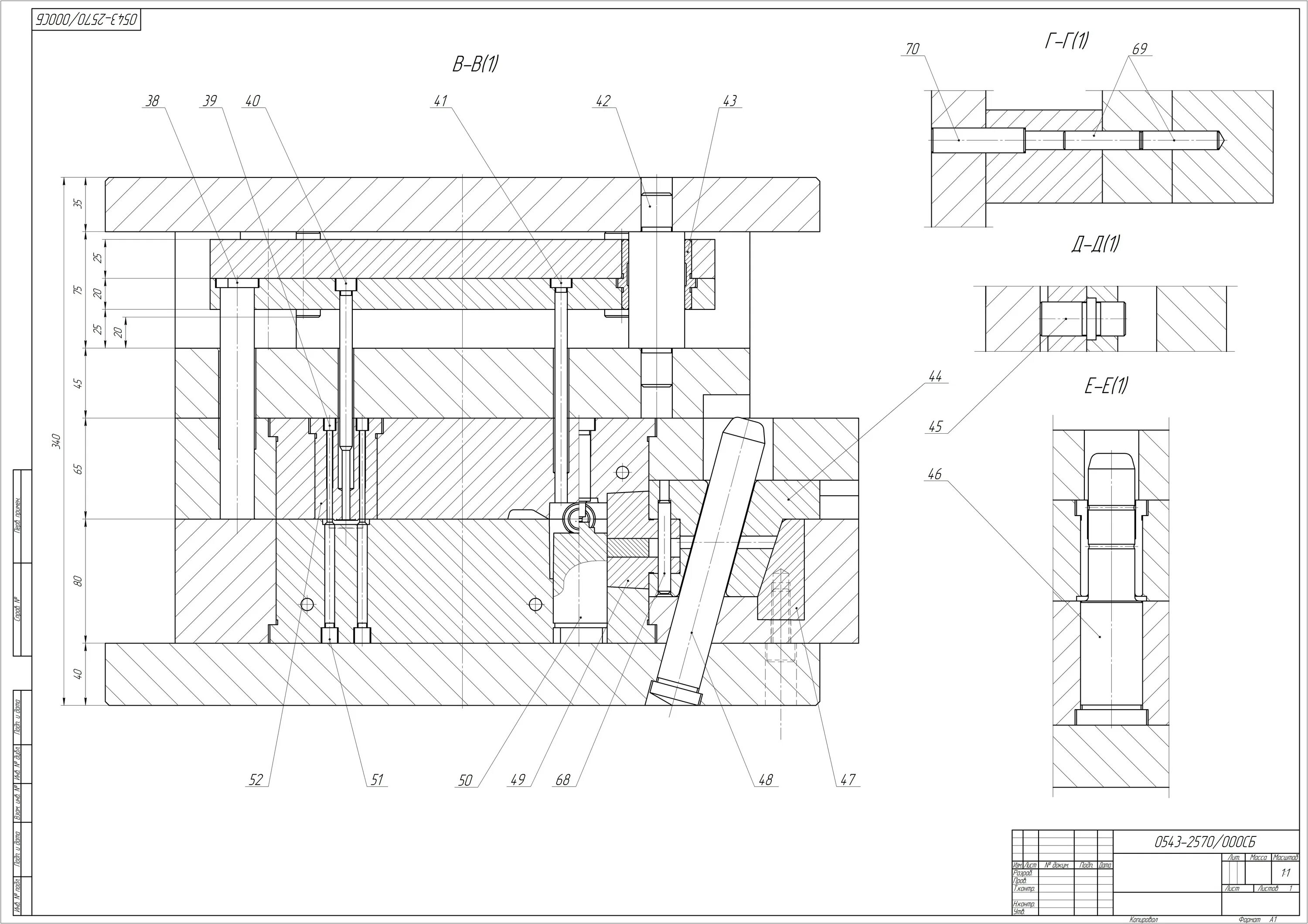
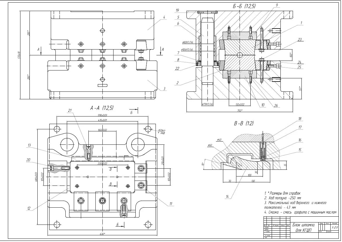
Расчет пресс форм