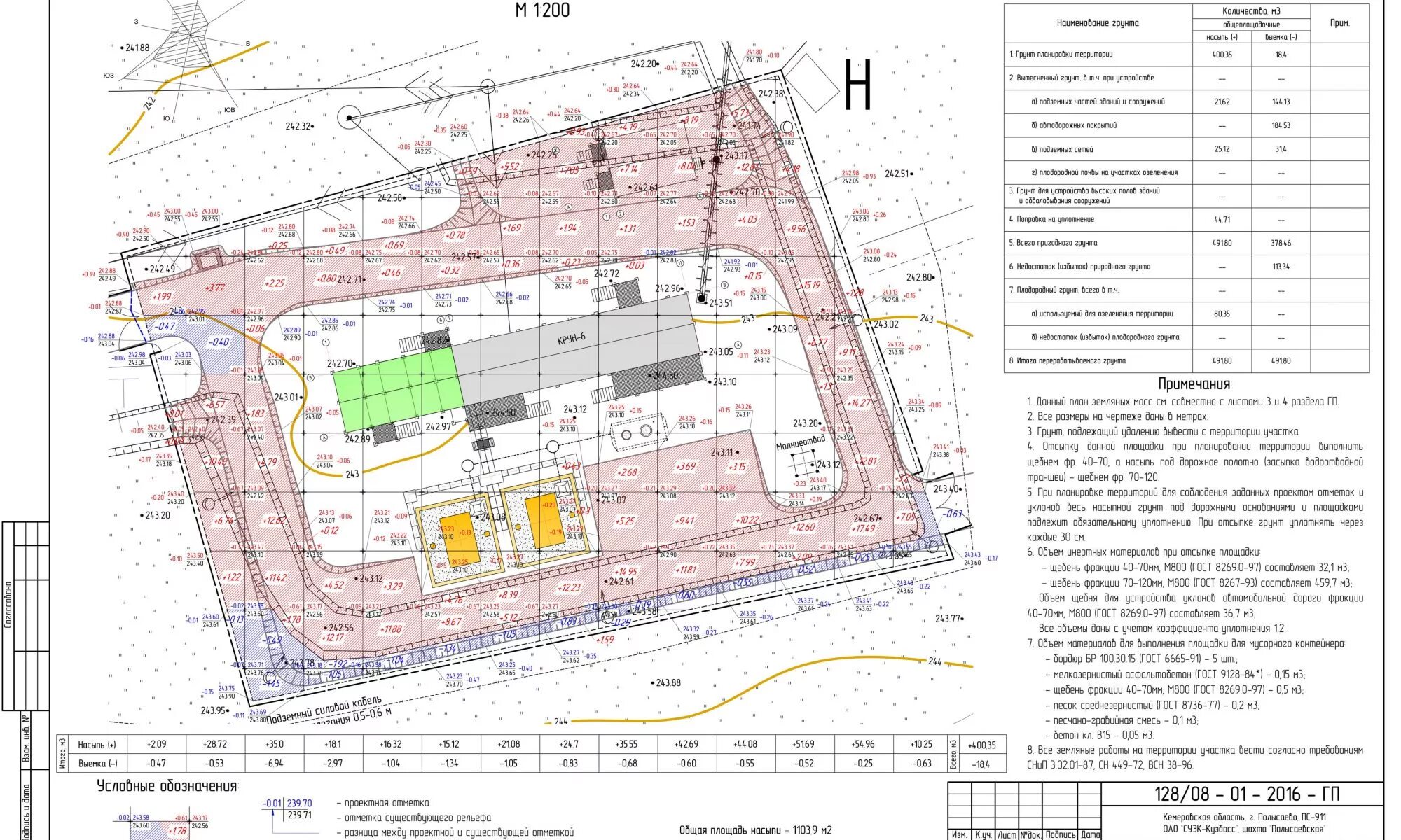
Расчет земельных работ