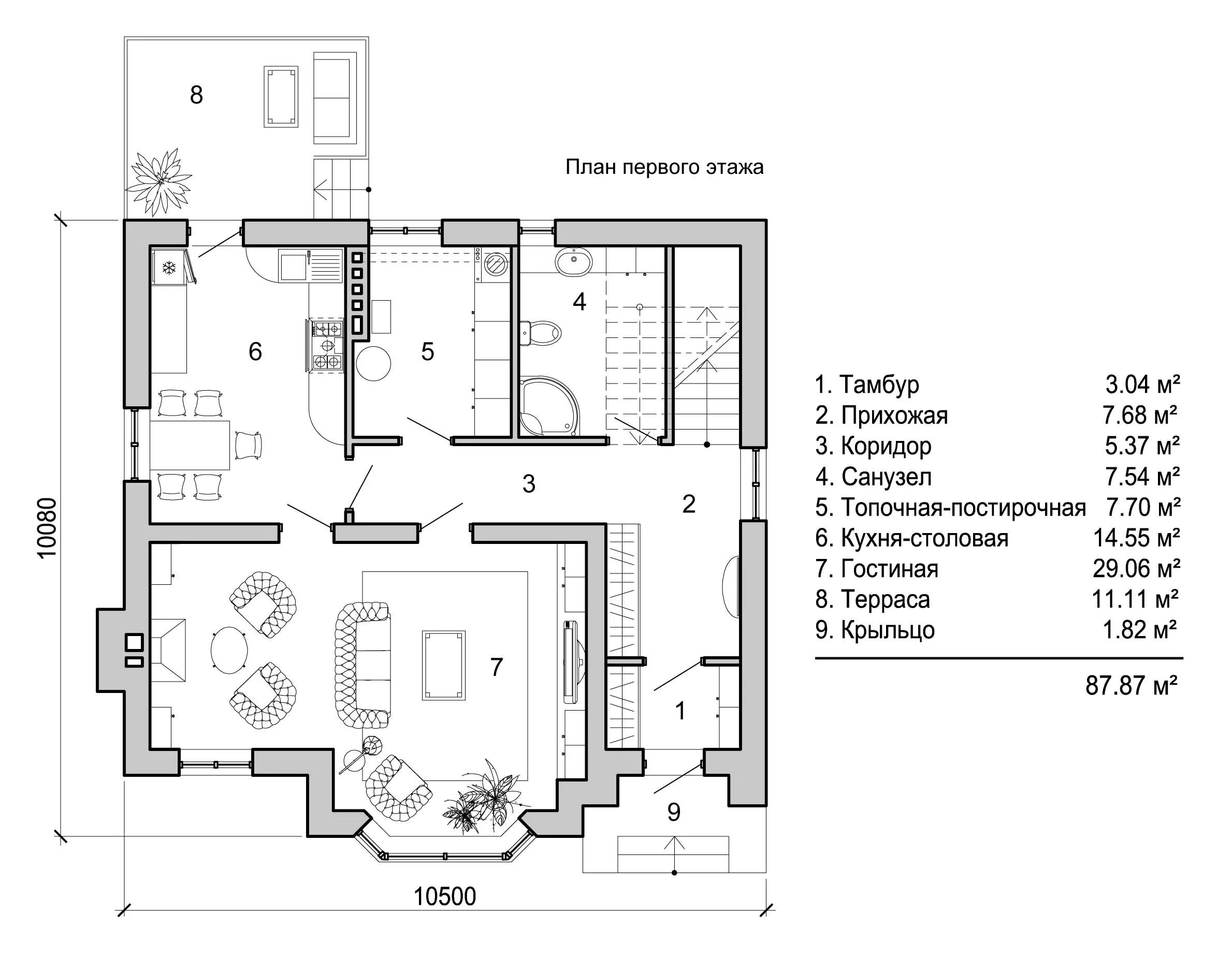
Располагается на первом этаже