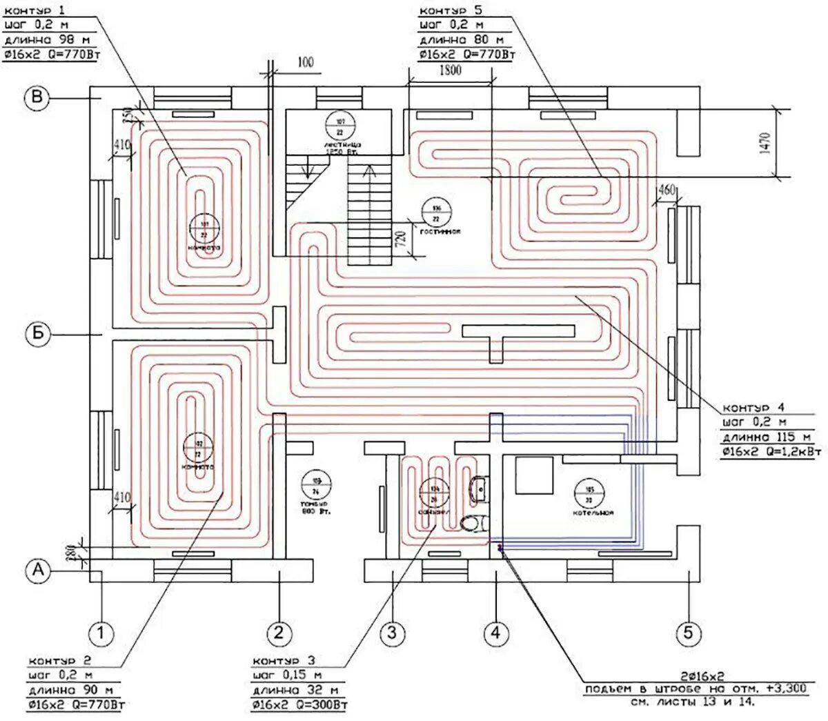
Расположения теплого пола