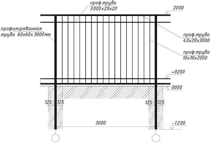
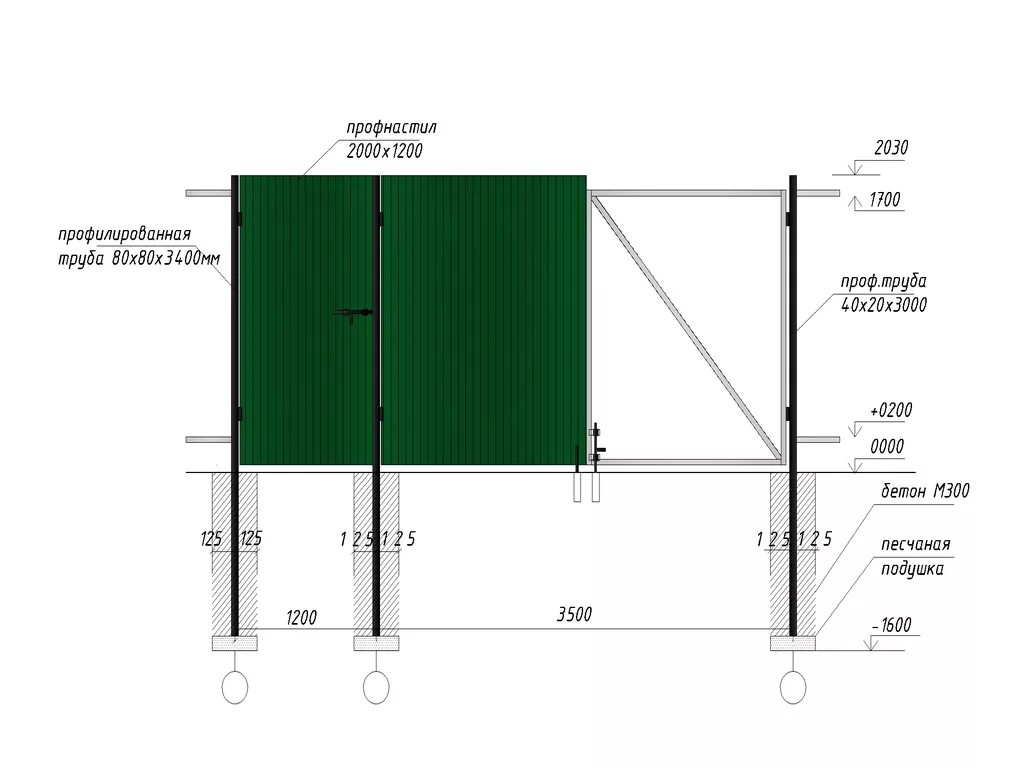
Расстояние между столбами 3 метра