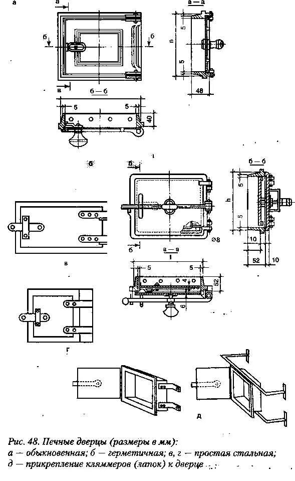
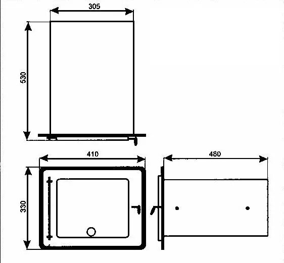
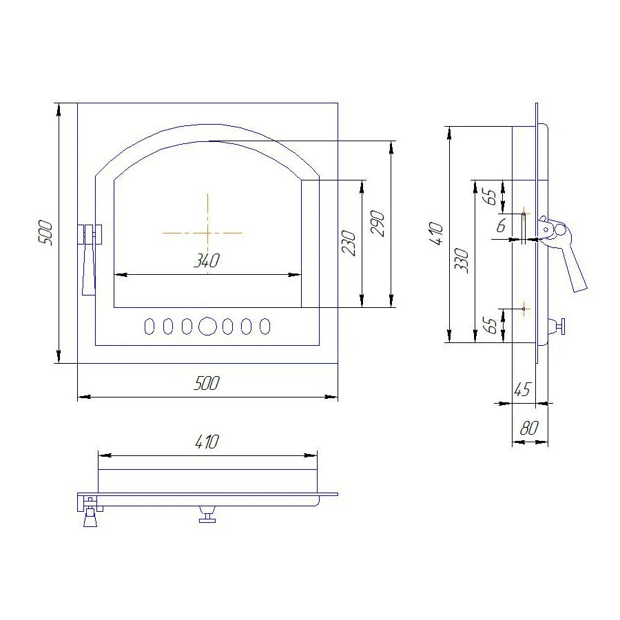
Размер дверцы для печи