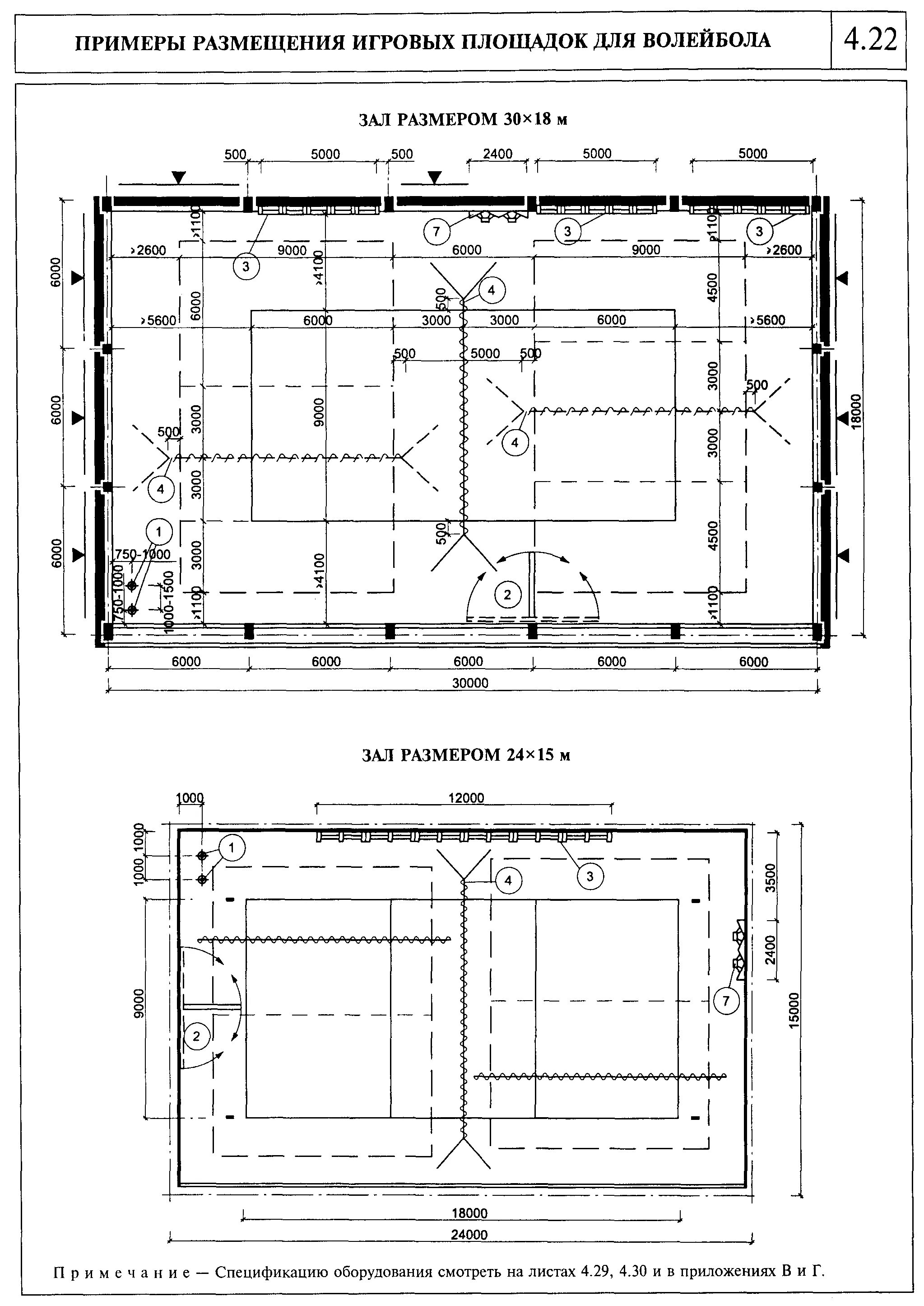
Размер игровой волейбольной