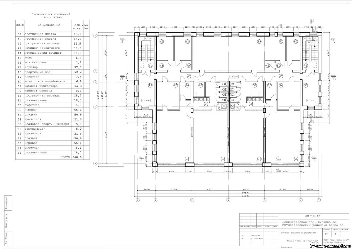
Размеры детского сада