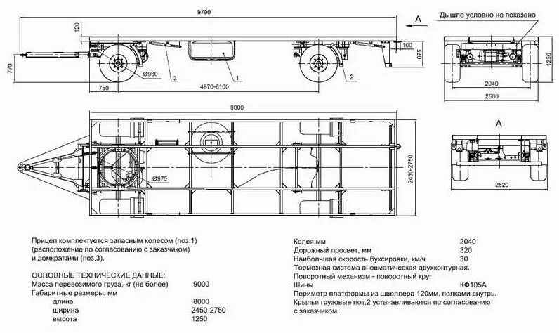
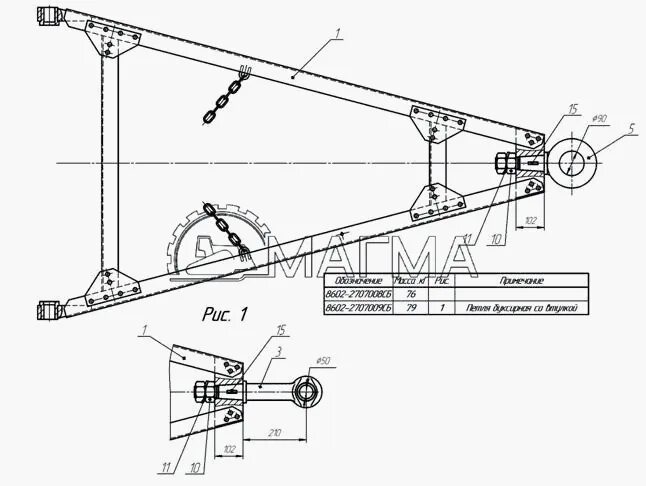
Размеры дышла