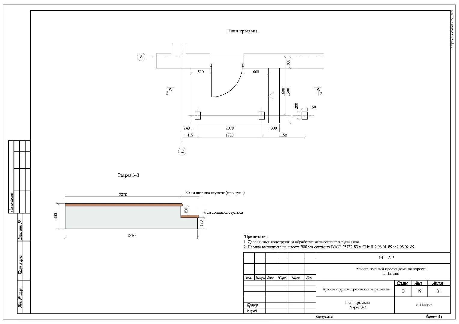
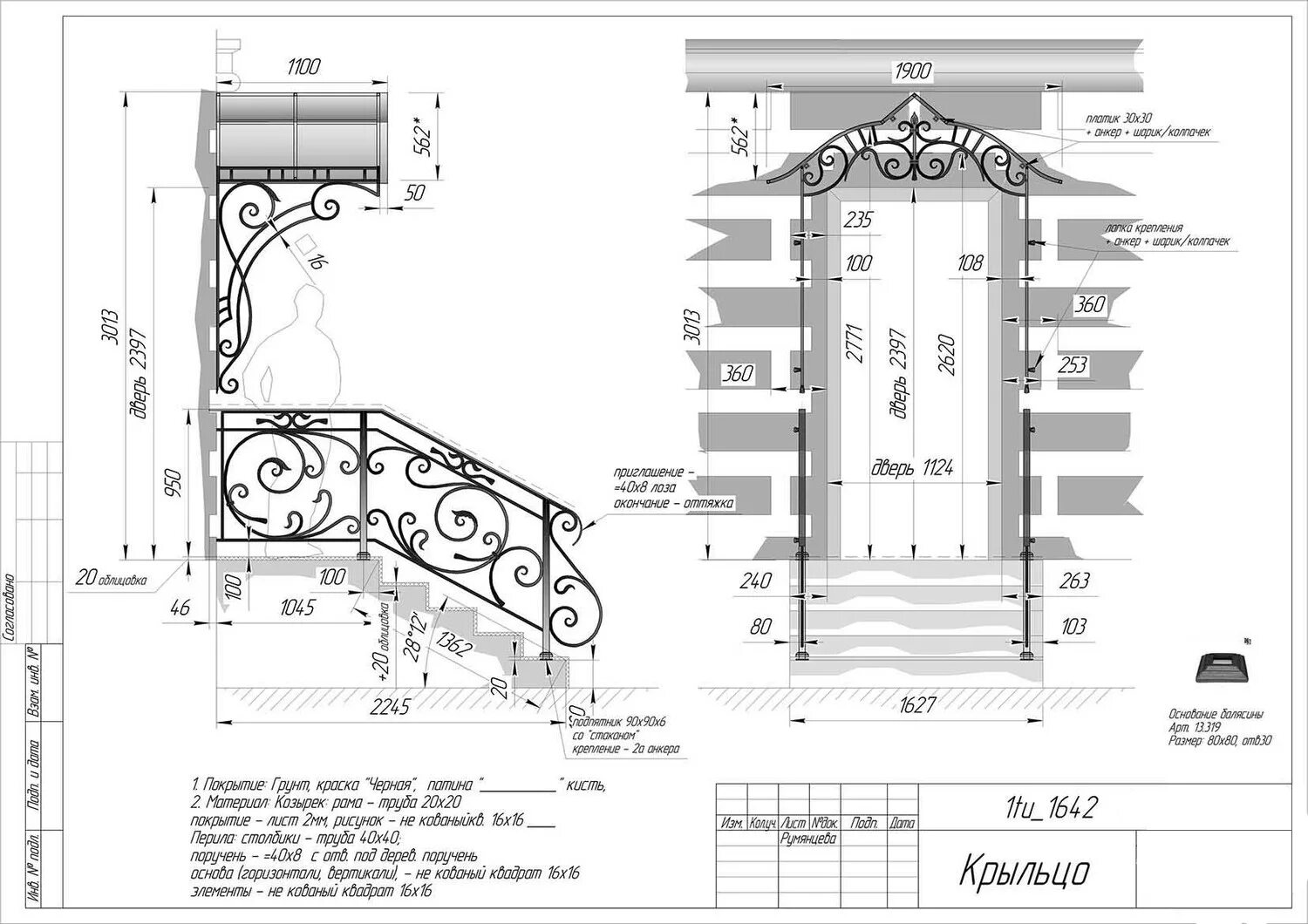
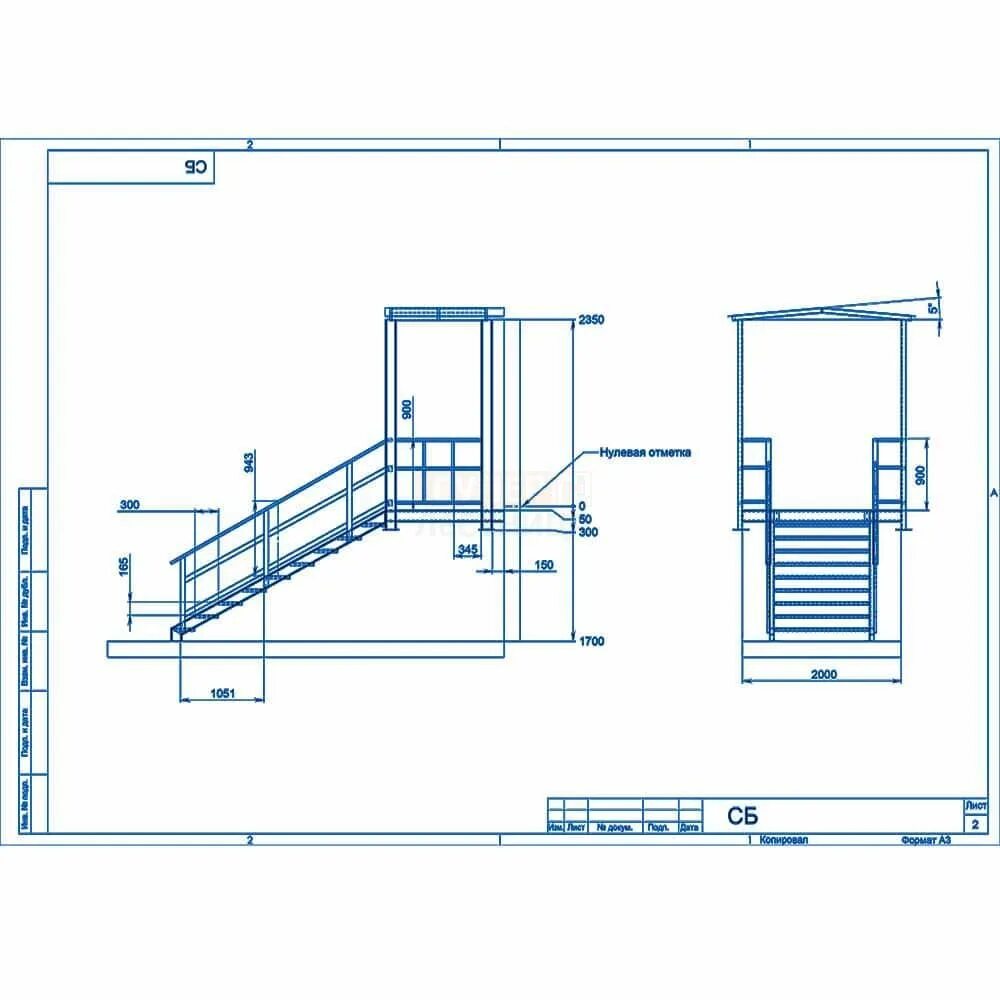
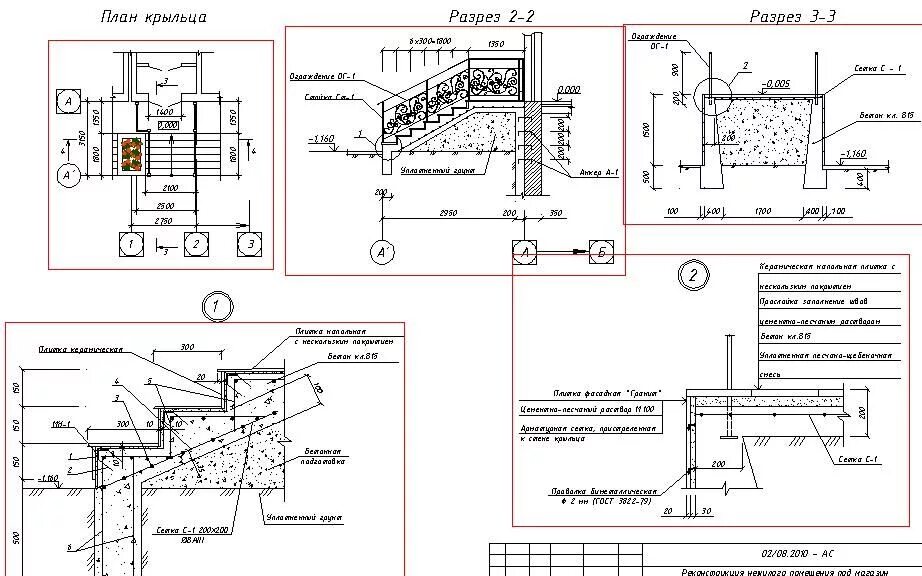
Размеры входного крыльца