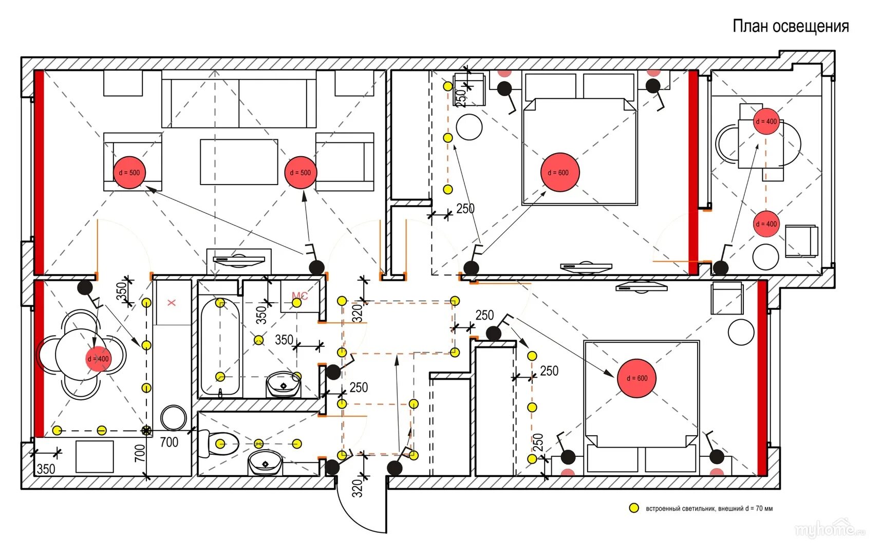
Размещение освещения