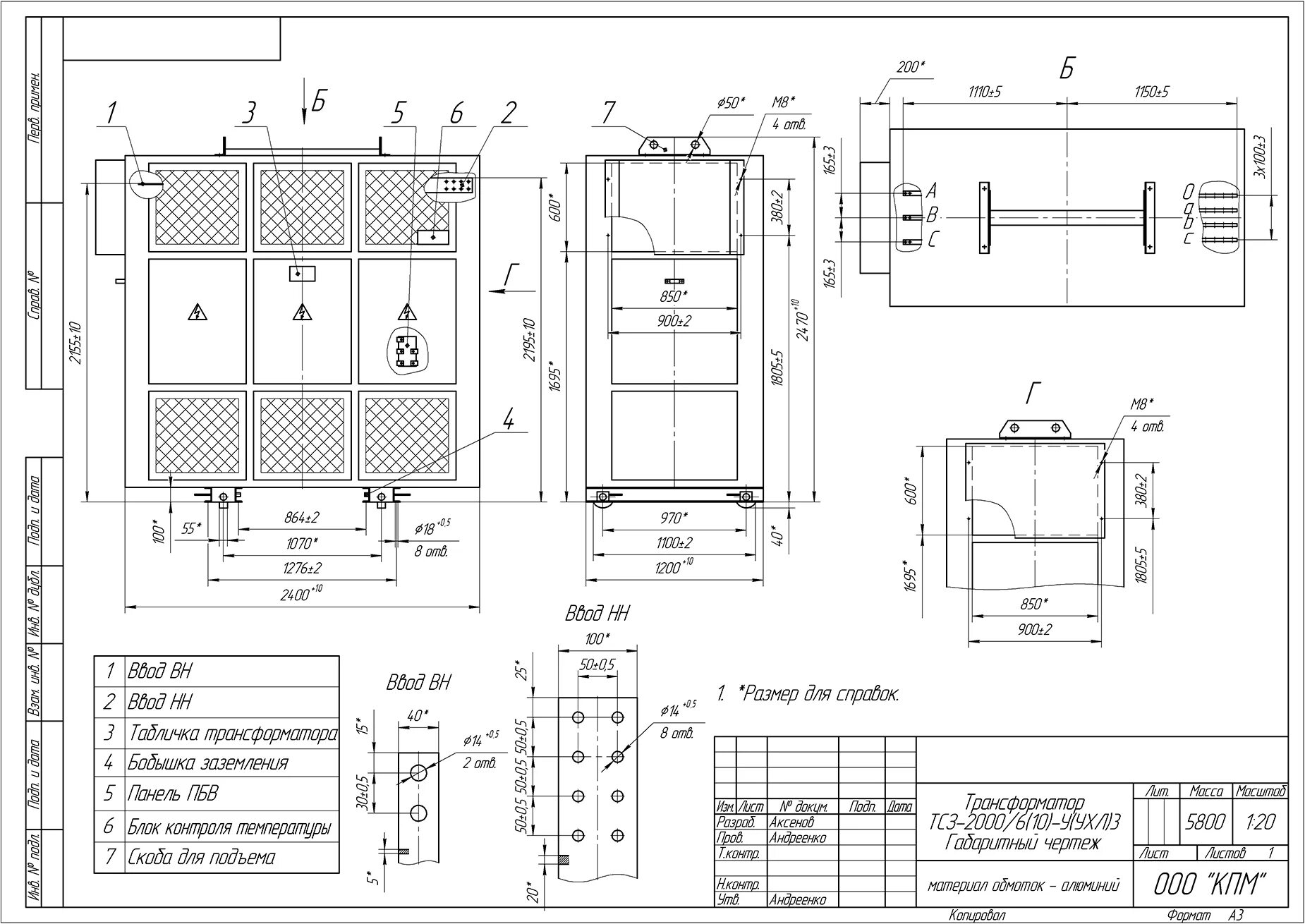
Размещение сухих трансформаторов