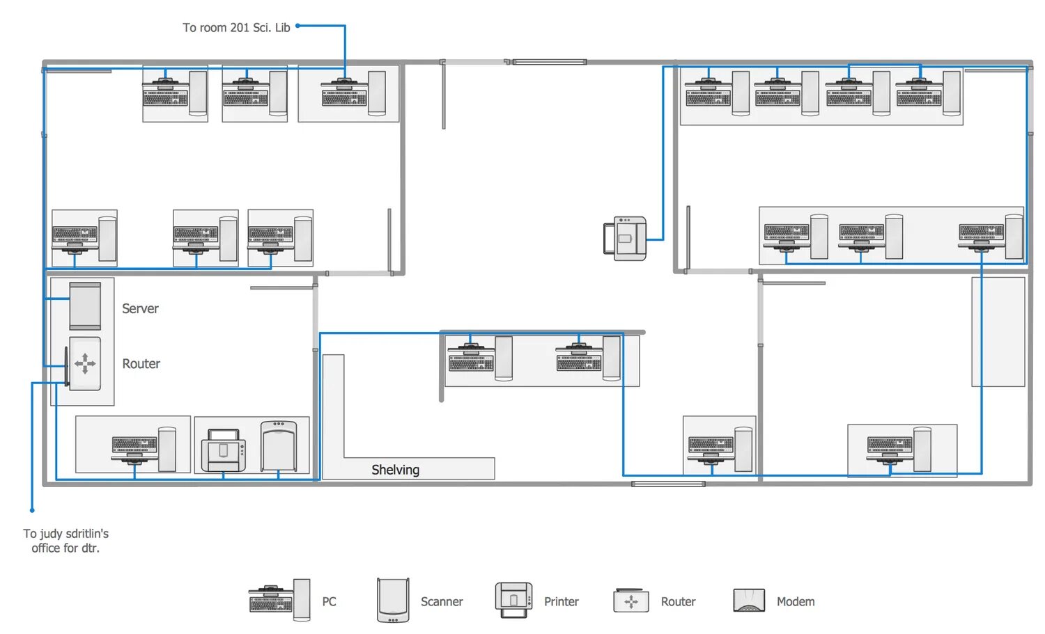
Разработка проекта локальной сети