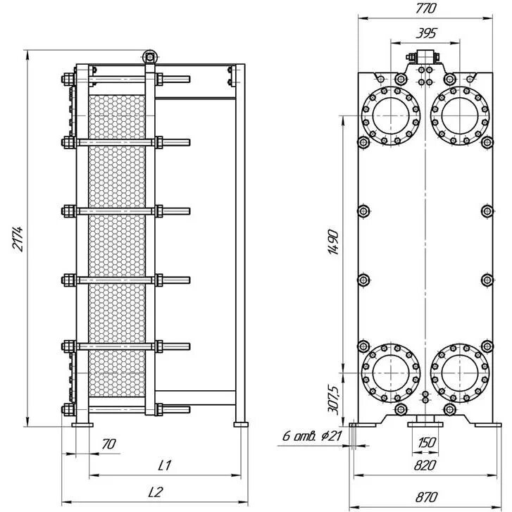
Рекуператор 100