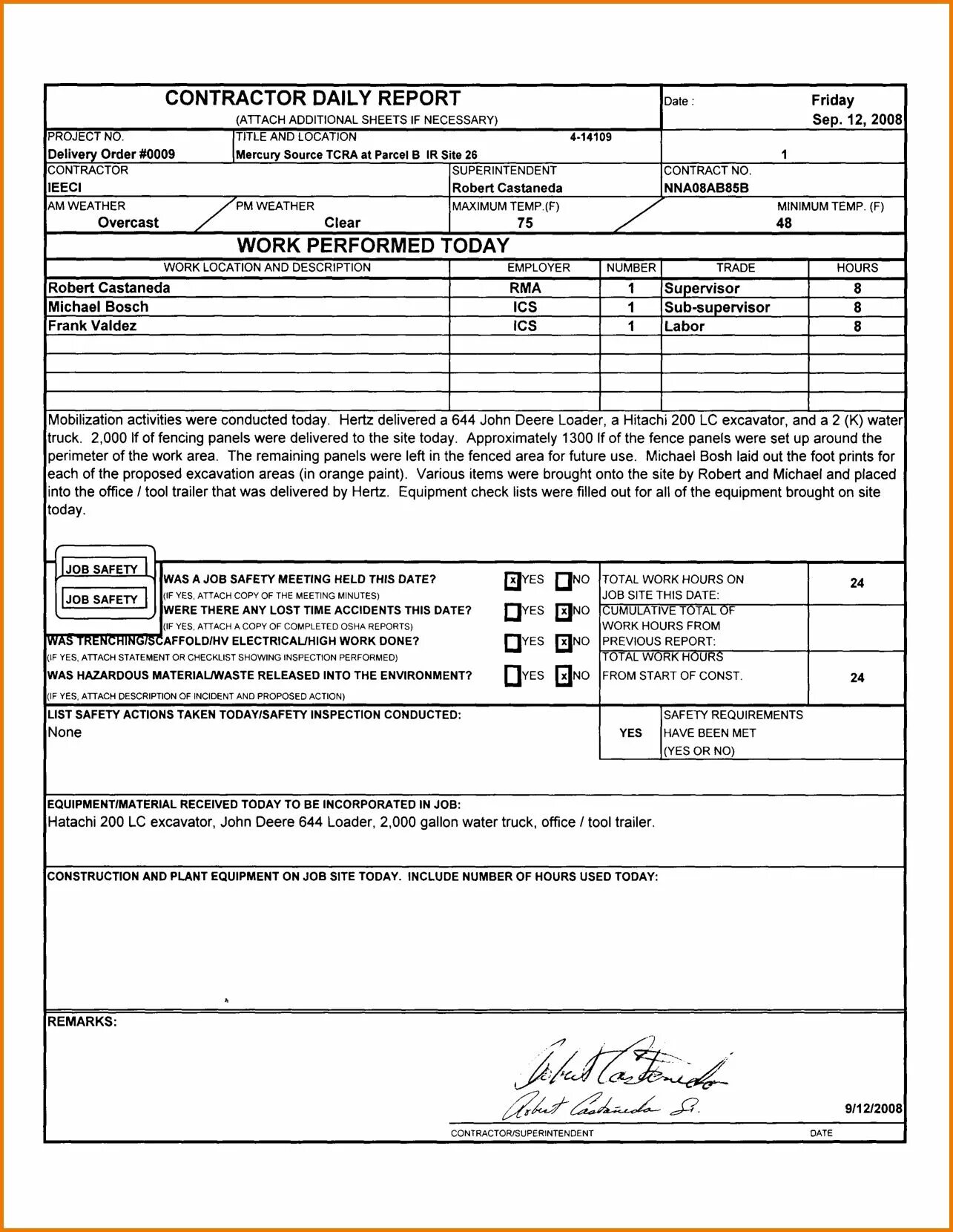
Report attached