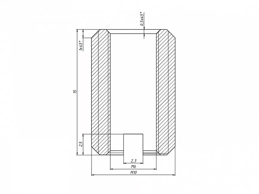
Резьба м10 внутренний