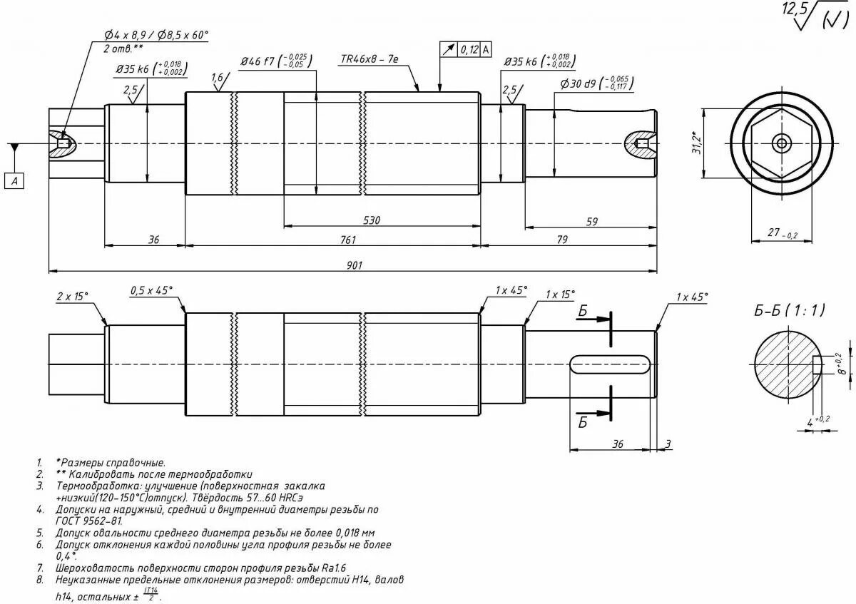
Резьба на вале