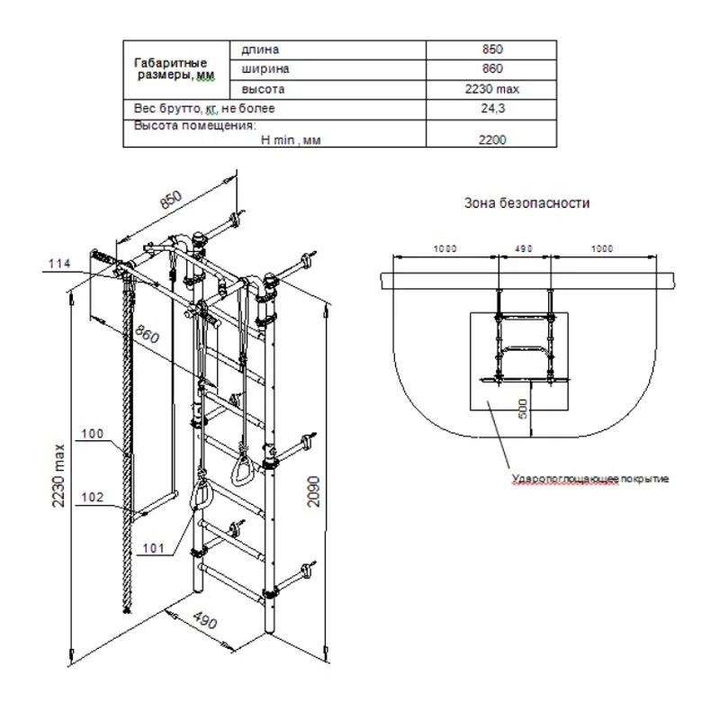
Roman size