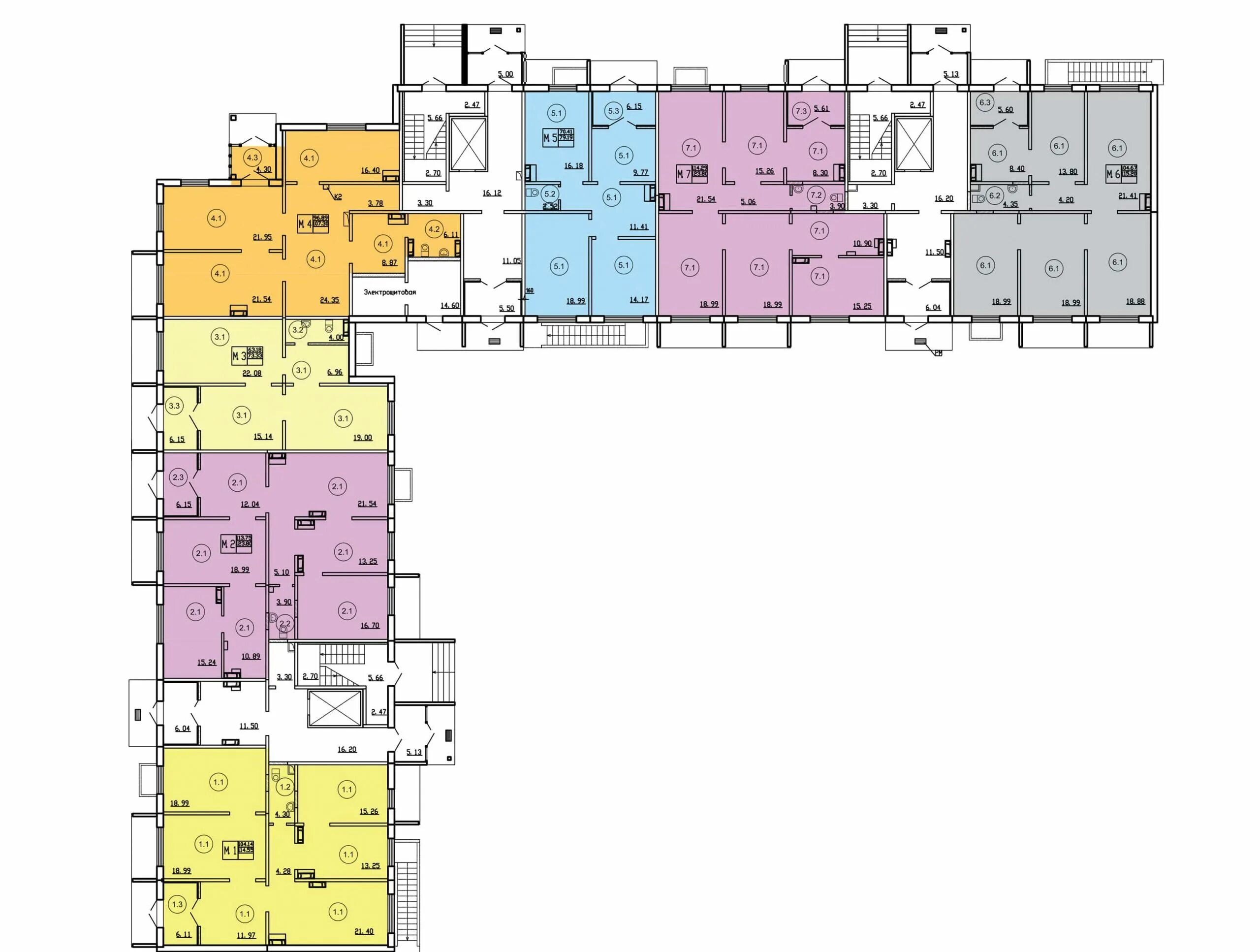
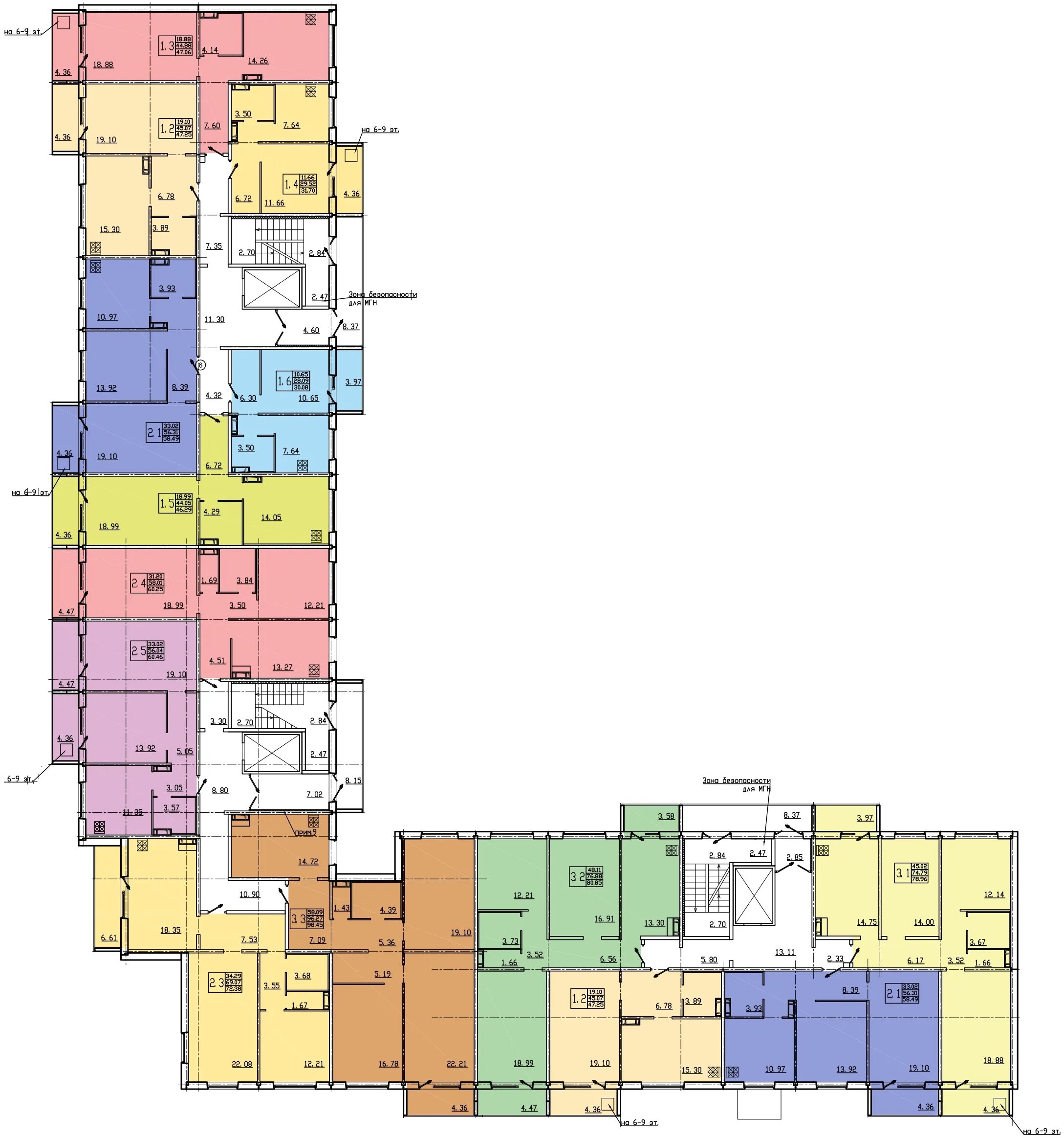
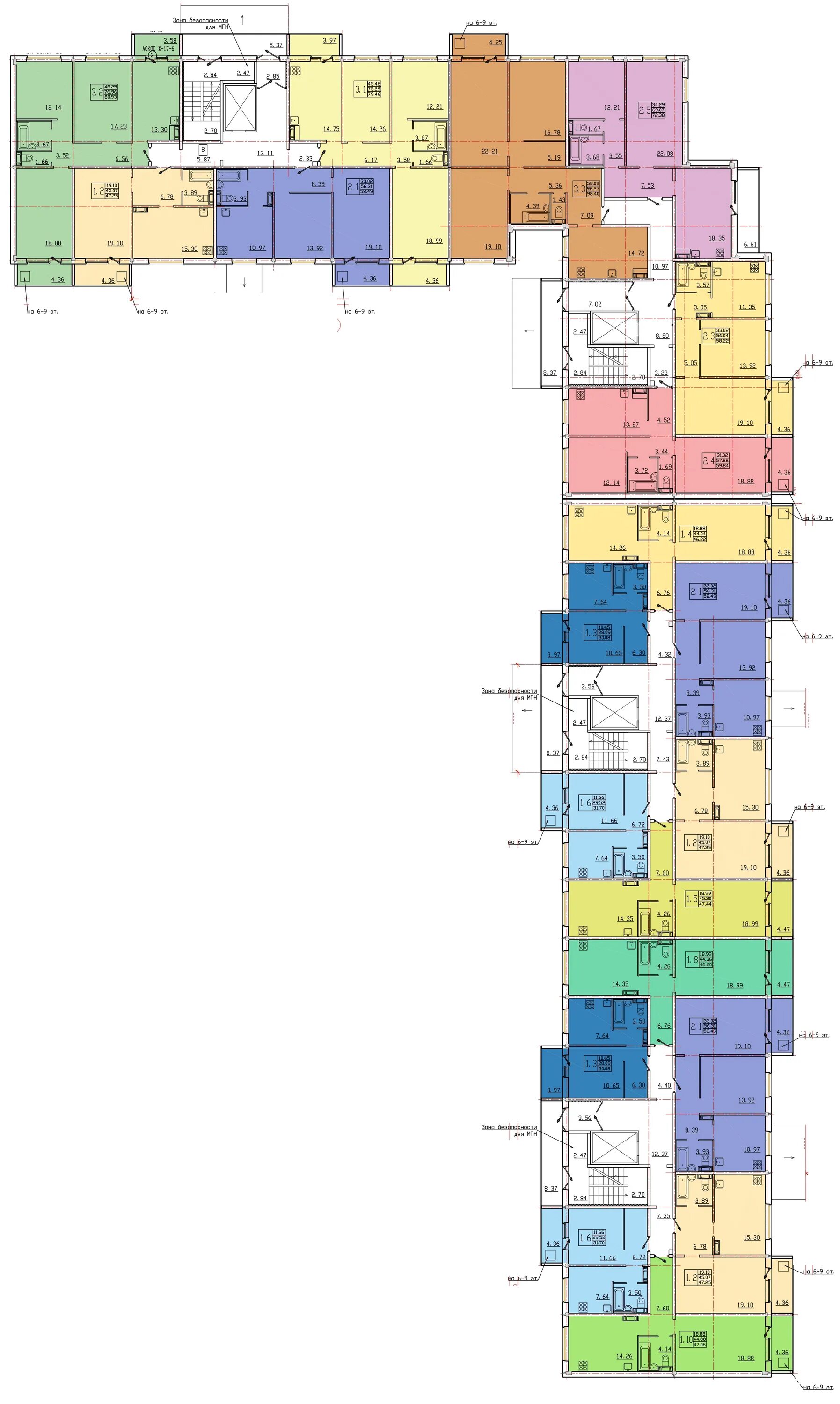
Сайт проектстроя