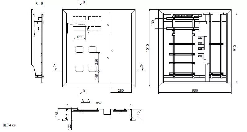
Щэ 1